Small, private retirement home with parking and countryside views.
Detached two-bedroom bungalow with private rear garden backing onto an equestrian field
Large driveway providing off-street parking for multiple cars
Compact interior (approx 608 sq ft); limited room sizes and storage
Requires updating throughout — clear refurbishment potential
Suitable for over-60s Lifetime Lease purchase option (price varies)
Freehold tenure; council tax described as affordable
Good transport links and fast broadband; rural hamlet setting
Area records above-average crime rates — consider security measures
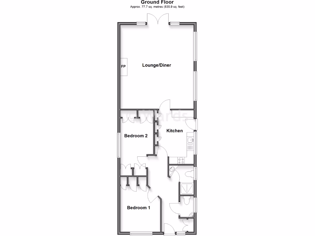
This detached two-bedroom bungalow on Maidstone Road is a compact, single-storey home suited to retired buyers seeking countryside calm with commuter convenience. The plot includes a large driveway for multiple cars and a private rear garden that backs onto an equestrian field, so the outside space is quiet and not overlooked.
The property needs updating throughout and offers clear scope for refurbishment to personalise the layout and finishes. At about 608 sq ft the internal space is modest, with one shower room and two bedrooms; buyers should expect limited room sizes and simpler storage provision.
For eligible purchasers aged 60+, Homewise’s Home for Life Lifetime Lease could reduce the purchase price significantly — a guide Lifetime Lease price is £214,500 (market value £325,000) depending on age and circumstances. The home is freehold and suitable as a retirement residence, but anyone considering purchase should verify all tenure, fixtures and services.
Practical points to note: transport links are good for commuters, broadband speeds are fast, and council tax is described as affordable. However, the area records above-average crime and the house will require renovation work, which should be factored into budgets and timelines.
2 bedroom detached bungalow for sale in Maidstone Road, Borden, Sittingbourne, Kent, ME9 — £325,000 • 2 bed • 1 bath • 608 ft²
3 bedroom detached bungalow for sale in Wises Lane, Borden, Sittingbourne, Kent, ME9 — £346,500 • 3 bed • 1 bath • 905 ft²
2 bedroom detached bungalow for sale in Stanhope Close, Maidstone, Kent, ME14 — £215,000 • 2 bed • 1 bath • 668 ft²
2 bedroom detached bungalow for sale in White Horse Lane, Otham, Maidstone, Kent, ME15 — £264,500 • 2 bed • 1 bath • 883 ft²
3 bedroom semi-detached bungalow for sale in Longfield Place, Maidstone, Kent, ME15 — £248,000 • 3 bed • 2 bath • 900 ft²
2 bedroom detached bungalow for sale in Victoria Road, Walderslade, Chatham, Kent, ME5 — £264,000 • 2 bed • 1 bath • 790 ft²






































