Compact, ready-to-move-in flat with private garden and driveway.
Two double bedrooms with built-in wardrobes
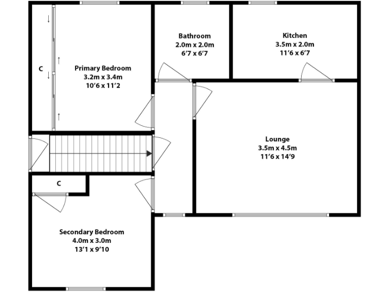
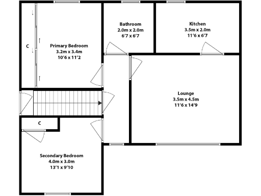
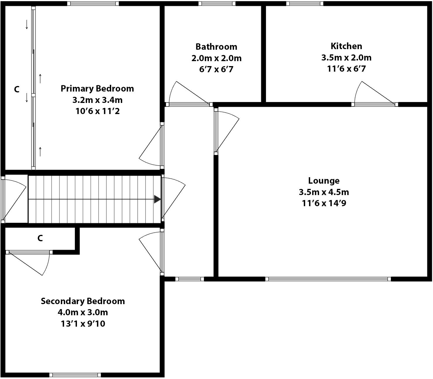
This two-bedroom upper cottage flat on Cedar Avenue offers a compact, well-presented home suited to first-time buyers or those looking to downsize. The property benefits from double glazing, gas central heating with a combi boiler, and included white goods — ready to move into sold as seen. A private driveway and a maintained garden provide rare outdoor space for a flat.
Internally the layout is traditional and efficient: a bright lounge with room for a dining area, a fitted kitchen with good storage, a bathroom with a walk-in shower, and two double bedrooms with built-in wardrobes. At about 536 sq ft the overall footprint is small, but storage has been considered and the accommodation feels practical for everyday living.
Buyers should note material points plainly: the tenure is not specified in the listing, the wider area is classified as very deprived, and this property has just returned to the market unexpectedly. These factors may affect future mortgage or resale considerations and are worth checking early in the process.
For those seeking an affordable entry into Clydebank, this flat combines low council tax and fast broadband with off-street parking and local amenities within walking distance. Early viewings are advised for buyers who value convenience, modest running costs and a garden without the demands of a full house.
2 bedroom flat for sale in Limetree Drive, Clydebank, G81 — £119,995 • 2 bed • 1 bath • 665 ft²
2 bedroom flat for sale in East Thomson Street, Clydebank, G81 — £109,995 • 2 bed • 1 bath
2 bedroom flat for sale in Whin Street, Clydebank, G81 — £119,995 • 2 bed • 1 bath • 839 ft²
2 bedroom flat for sale in Faifley Road, Clydebank, G81 — £99,995 • 2 bed • 1 bath • 742 ft²
2 bedroom flat for sale in Glanderston Drive, Knightswood, Glasgow, G13 3UB, G13 — £129,000 • 2 bed • 1 bath • 753 ft²
2 bedroom flat for sale in Cunard Court, Clydebank, G81 — £114,995 • 2 bed • 1 bath • 570 ft²


















































































