**Standout Features:**
- End terrace house with a Victorian-style exterior
- Generously sized double aspect living room
- Fitted kitchen/dining room
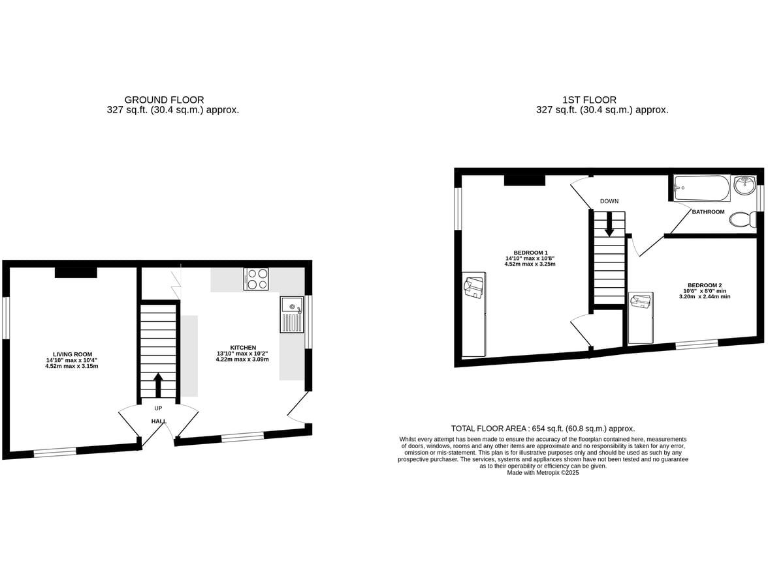
- Two first-floor bedrooms and modern bathroom
- Enclosed side yard for outdoor space
- Chain-free sale with vacant possession
- Excellent mobile signal and fast broadband speeds
**Potential Concerns:**
- Area classified as very deprived with high crime rates
- Some interior updating may be required, particularly in the living room
- Solid brick construction without insulation (assumed)
This charming end terrace house in Workington presents a fantastic opportunity for first-time buyers or investors looking for a buy-to-let. Offering two comfortably-sized bedrooms and a modern bathroom, the property’s layout ensures a good flow and functional living space. The sizable double aspect living room is a standout feature, perfect for relaxed evenings or entertaining friends. The fitted kitchen/dining room is functional with ample storage, making meal preparation easy and enjoyable.
Enjoy the convenience of being situated close to the town center's shopping facilities, schools, and public transport links, all within walking distance. The enclosed yard offers private outdoor space, ideal for a small garden or seating area. Although the property may require some updating, it holds great potential for personalization and future value enhancement. Priced at £85,000, this home is a sensible and affordable choice, highly suitable for those eager to invest in a property in a challenging yet vibrant community. Don’t miss out on this inviting home—schedule a viewing today to envision your future here!
2 bedroom terraced house for sale in Yeowartville, Workington, CA14 — £65,000 • 2 bed • 1 bath • 580 ft²
3 bedroom terraced house for sale in Lonsdale Street, Workington, CA14 — £78,350 • 3 bed • 1 bath • 1002 ft²
2 bedroom terraced house for sale in Moss Bay Road, Workington, Cumbria, CA14 — £70,000 • 2 bed • 1 bath • 1019 ft²
2 bedroom terraced house for sale in Devonshire Street, Workington, CA14 — £60,000 • 2 bed • 1 bath • 569 ft²
2 bedroom terraced house for sale in Cumberland Street, Workington, CA14 2QP, CA14 — £70,000 • 2 bed • 1 bath • 910 ft²
3 bedroom terraced house for sale in Senhouse Street, Workington, CA14 — £90,000 • 3 bed • 1 bath • 1125 ft²






























