**Standout Features:**
- Charming Grade II listed Georgian townhouse
- Newly renovated spaces with modern finishes
- Bright, open-plan kitchen with island and built-in appliances
- Private courtyard-style garden ideal for relaxation
- Chain free sale, allowing for a swift purchase
- Prized location in the city center surrounded by amenities
**Concerns:**
- Listed property status may complicate future alterations
- Broadband speeds are very slow
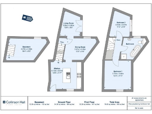
This beautifully presented, Grade II listed Georgian townhouse in the heart of St. Albans offers a unique blend of historic charm and contemporary style, making it an ideal family home or investment opportunity. With two well-proportioned bedrooms and a luxurious four-piece family bathroom, this newly renovated terraced property boasts high ceilings and bright, airy spaces throughout. The stylish open-plan kitchen features modern cabinetry and a central island, perfect for entertaining. The cozy living room offers seamless access to a low-maintenance, private courtyard garden, ideal for al fresco dining. Nestled moments from a variety of shops, eateries, and renowned historical landmarks, this home is not only appealing for its aesthetic but also its enviable location in an affluent area, with low crime rates to enhance your peace of mind.
Potential buyers should note the property's listed status, which may present challenges with renovations, and the very slow broadband speeds. However, the charm and elegance of this unique property—available chain free—makes it a rare find, promising a cozy atmosphere and future potential. Don’t miss out on this exclusive opportunity to own a piece of St. Albans' architectural history!
2 bedroom terraced house for sale in Lower Dagnall Street, St. Albans, Hertfordshire, AL3 — £600,000 • 2 bed • 1 bath • 739 ft²
3 bedroom semi-detached house for sale in Spencer Street, St. Albans, AL3 — £1,025,000 • 3 bed • 1 bath • 1477 ft²
3 bedroom terraced house for sale in Lower Dagnall Street, St. Albans, Hertfordshire, AL3 — £1,000,000 • 3 bed • 1 bath • 1069 ft²
3 bedroom detached house for sale in Queen Street, St. Albans, Hertfordshire, AL3 — £1,100,000 • 3 bed • 2 bath • 1227 ft²
3 bedroom terraced house for sale in Lower Dagnall Street, St. Albans, Hertfordshire, AL3 — £950,000 • 3 bed • 1 bath • 1157 ft²
5 bedroom semi-detached house for sale in Selby Avenue, St. Albans, Hertfordshire, AL3 — £1,250,000 • 5 bed • 1 bath • 1839 ft²






















































