Contemporary low-maintenance apartment close to shops and the train station.
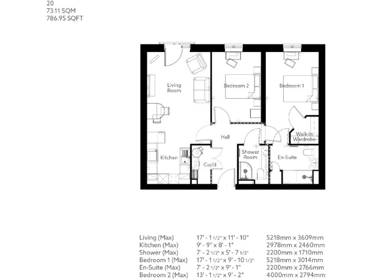
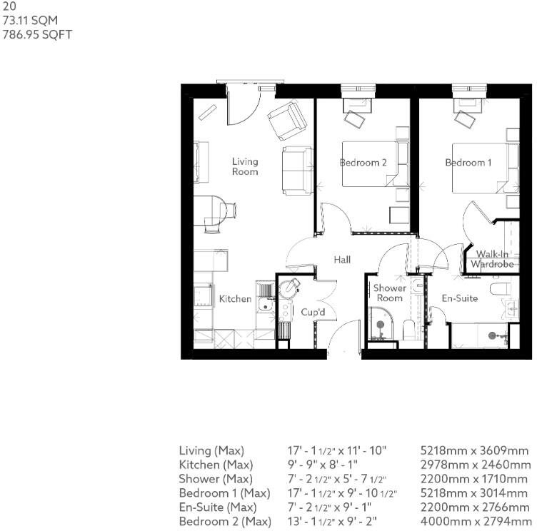
Two double bedrooms; principal with en suite and walk-in wardrobe
Second shower room plus bright living/dining room and fitted kitchen
Lifts to all floors, communal lounge, landscaped gardens and onsite parking
Pets welcome and intruder alarm fitted for added security
Leasehold with 999 years remaining; service charge approx £77.05/month
EPC B and low-crime, affluent hamlet location near shops and station
Electric storage heaters; higher running costs possible
Very slow broadband and assumed cavity walls with no added insulation
Apartment Twenty is a well-appointed two-bedroom second-floor retirement apartment designed for independent, easy living. The principal bedroom includes a modern en suite and a walk-in wardrobe; a second double bedroom and separate shower room provide flexible guest or study space. A bright living/dining room, fitted kitchen and built-in storage complete the accommodation.
Residents benefit from communal facilities including landscaped gardens, a lounge, lifts to all floors, on-site parking and a covered drop-off. Pets are welcome and an intruder alarm adds peace of mind. The development is within walking distance of local shops and the train station, and Hook’s countryside, pubs and leisure attractions are all close by.
Practical considerations are clear: the apartment is leasehold with 999 years remaining and a service charge of approximately £77.05 per month (around £924.60 per year). Heating is by electric storage heaters and mains electricity; the building has secondary glazing and assumed cavity walls without added insulation. Broadband speeds are reported very slow, which may affect streaming or home working.
Overall this is a contemporary, low-maintenance retirement home that suits buyers valuing community facilities and local convenience. Buyers should note likely higher running costs from electric heating, potential insulation upgrades, and check council tax and service charge details with their solicitor before exchange.
2 bedroom retirement property for sale in Former Rawlings Fuel Yard, Station Road, Hook, RG27 — £445,000 • 2 bed • 1 bath • 775 ft²
1 bedroom retirement property for sale in Former Rawlings Fuel Yard, Station Road, Hook, RG27 — £280,000 • 1 bed • 1 bath • 948 ft²
1 bedroom retirement property for sale in Station Road, Hook, RG27 — £335,000 • 1 bed • 1 bath
2 bedroom retirement property for sale in 1-36 Station Road,
Hook,
Hampshire,
RG27 9GU, RG27 — £399,000 • 2 bed • 1 bath • 786 ft²
1 bedroom retirement property for sale in Station Road, Hook, RG27 — £350,000 • 1 bed • 1 bath • 557 ft²
1 bedroom retirement property for sale in Former Rawlings Fuel Yard, Station Road, Hook, RG27 — £380,000 • 1 bed • 1 bath • 649 ft²










































