Ready-to-move-in two-bedroom home with garage and gardens.
Two double bedrooms, generous open-plan living with bay and panoramic views
Modern fitted kitchen and contemporary three-piece bathroom
Private garage plus off-road parking; communal gardens maintained
Long lease (999 years) and low Council Tax band B
Average overall size ~752 sq ft; not a large family home
Single bathroom only; no ensuite
Peaceful location near Oxton Village and local schools
Average local crime; affluent area with fast broadband and excellent signal
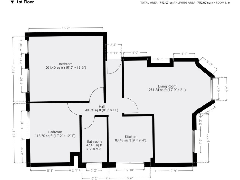
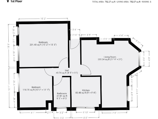
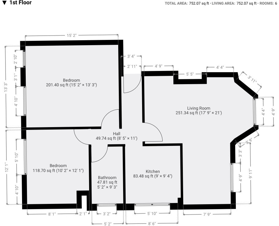
This first-floor two-bedroom apartment offers a light-filled, open-plan living and dining room with a large bay window and panoramic views across open green space. The living space feels notably generous for the overall footprint, making it ideal for socialising or flexible working-from-home layouts. Both bedrooms are doubles and the accommodation is presented in good order throughout.
Practical benefits include a modern fitted kitchen, a contemporary three-piece bathroom, a private garage and off-road parking, plus attractive, well-maintained communal gardens. The long lease (999 years) and low Council Tax band B keep ongoing costs predictable, while fast broadband and excellent mobile signal suit modern living. The setting is peaceful and within easy reach of Oxton Village amenities and local schools.
As a clear-sighted buyer you should note the flat is an average overall size (approximately 752 sq ft) with a single bathroom and no ensuite. It is leasehold, although the lease length is effectively long. Crime levels are average for the area; the neighbourhood is generally affluent and suited to older buyers or downsizers as well as first-time purchasers.
This property suits a buyer wanting ready-to-move-in accommodation with good communal outdoor space, secure parking and long-term tenure. It’s a sensible choice for those prioritising views, convenience to local amenities and low running costs, but not for someone seeking a large family home or extensive renovation potential.
2 bedroom flat for sale in Kingsmead Road South, Prenton, Wirral, CH43 — £230,000 • 2 bed • 2 bath • 734 ft²
2 bedroom flat for sale in Waterford Road, Prenton, CH43 — £180,000 • 2 bed • 1 bath • 872 ft²
2 bedroom flat for sale in Ulverscroft, Bidston Road, Oxton, Wirral , CH43 — £180,000 • 2 bed • 1 bath • 872 ft²
2 bedroom flat for sale in Park Road South, Prenton, Wirral, CH43 — £117,000 • 2 bed • 1 bath • 612 ft²
2 bedroom flat for sale in The Cresson, Bidston Road, Oxton, Wirral , CH43 — £135,000 • 2 bed • 2 bath • 786 ft²
2 bedroom flat for sale in Bidston Road, Prenton, Wirral, CH43 — £170,000 • 2 bed • 2 bath • 863 ft²






















































































