Private garden, rare six-car parking and solid roof — characterful family home.
- Detached two-bedroom cottage with original beams and character
- Newly fitted roof provides recent major maintenance reassurance
- Large private garden, not overlooked, mature planting
- Long driveway with parking for up to six cars
- Substantial detached garage, useful workshop or storage space
- Some rooms have low ceilings and may need modernising
- Located in an area with higher crime and local deprivation
- Fast broadband and excellent mobile signal; council tax band B
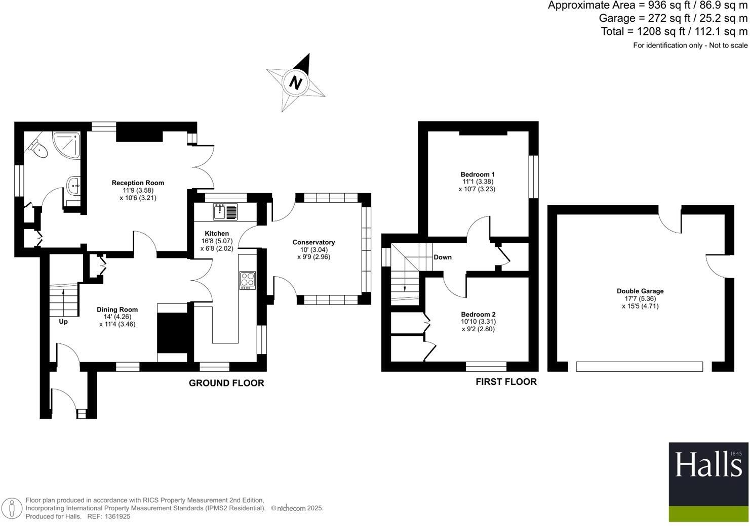
This charming two-bedroom detached cottage blends period character with practical modern comforts. Exposed beams, cast-iron radiators and a cosy reception room with a log burner create immediate warmth, while a newly fitted roof gives long-term reassurance. The triple-aspect kitchen flows into a conservatory and patio, making indoor-outdoor living straightforward for family life and entertaining.
The plot is a standout feature: a landscaped, private garden and a long paved driveway providing rare parking for up to six vehicles plus a large detached garage. Bedrooms are double-sized and storage is generous throughout – useful for growing families or those wanting flexible space.
Buyers should note the property sits in an area with higher crime rates and wider deprivation indicators; prospective purchasers may wish to verify local services and security measures. Internally the cottage retains quirky, low-ceilinged rooms and, while generally well presented, would benefit from some updating to suit modern tastes. Overall this is a characterful home offering substantial external space and practical advantages not often found with cottages in this price bracket.
3 bedroom detached house for sale in Main Road, Ketley Bank, Telford, Shropshire, TF2 — £425,000 • 3 bed • 2 bath • 1589 ft²
4 bedroom detached house for sale in 61 West Road, Ketley Bank, Telford, Shropshire., TF2 — £425,000 • 4 bed • 2 bath • 1818 ft²
2 bedroom cottage for sale in Main Road, Ketley Bank, Telford, TF2 0DH, TF2 — £350,000 • 2 bed • 1 bath • 1120 ft²
3 bedroom detached house for sale in Main Road, Ketley Bank, Telford, Shropshire, TF2 — £425,000 • 3 bed • 2 bath
3 bedroom cottage for sale in West Road, Ketley Bank, Telford, TF2 0DJ , TF2 — £350,000 • 3 bed • 2 bath • 1253 ft²
2 bedroom cottage for sale in Beech Road, Telford, TF7 — £300,000 • 2 bed • 1 bath






































































































