Period charm, annexe income potential and greenbelt views in a gated, flexible family estate..
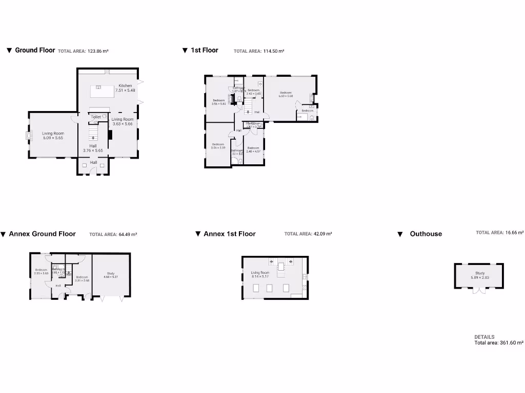
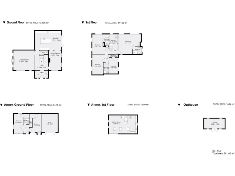
- Six to seven bedrooms and five bathrooms across multi-storey layout
- Self-contained annexe ideal for Airbnb or multi-generational living
- Backing onto protected greenbelt land with private wrap-around gardens
- Detached garage, outbuilding suitable for home business or office
- Approximately 3,886 sq ft of accommodation, substantial room count
- Double glazing installed post-2002; mains gas boiler and radiators
- EPC rating D and above-average council tax to factor in
- Offered chain free on freehold tenure
Set behind electric wrought-iron gates on a sweeping driveway, this substantial detached period home offers generous living across multiple floors. The interior blends original stone character with contemporary finishes and high ceilings, creating an elegant family environment with flexible living spaces.
A self-contained annexe (suitable for relatives or letting) and a separate outbuilding provide clear income or home-business potential. The property enjoys wrap-around gardens that back directly onto protected greenbelt land, delivering privacy and countryside outlooks while remaining close to commuter links and highly regarded schools.
Practical details include a detached garage, double glazing installed post-2002, mains gas central heating and a large footprint of about 3,886 sq ft. The house is chain free and freehold, but note the EPC rating of D and above-average council tax banding. Overall, this is a rare combination of period charm, modern comfort and versatile revenue potential in a very affluent area.
5 bedroom detached house for sale in Rowley Lane, Fenay Bridge, HD8 — £350,000 • 5 bed • 4 bath • 2390 ft²
5 bedroom detached house for sale in The Laurels, Lascelles Hall Road, Lascelles Hall, HD5 — £900,000 • 5 bed • 4 bath • 1206 ft²
6 bedroom detached house for sale in Common End Lane, Lepton, HD8 — £900,000 • 6 bed • 3 bath • 4200 ft²
4 bedroom semi-detached house for sale in Penistone Road, Fenay Bridge, HD8 — £315,000 • 4 bed • 1 bath • 1356 ft²
6 bedroom detached house for sale in Latham Lane, Gomersal, Cleckheaton, West Yorkshire, BD19 — £1,250,000 • 6 bed • 6 bath • 2778 ft²
5 bedroom detached house for sale in Cornerstones, Fenay Bankside, Fenay Bridge, HD8 — £650,000 • 5 bed • 2 bath • 1507 ft²






































































































































































































































