Move-in ready one-bedroom with concierge and superb West End access..
Chain free, 182 years lease remaining
Concierge/porter and secure key-phone entry
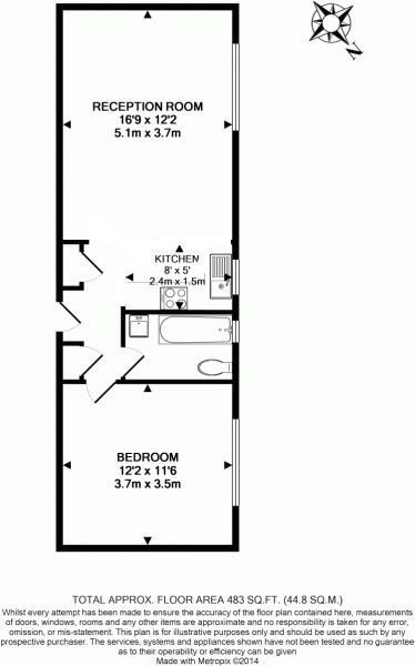
483 sq ft; compact one-bedroom city layout
Hot water and heating included in service charge
Excellent transport: multiple Tube stations within minutes
Service charge above average (£6,100) — factor ongoing costs
Ground rent £250 per year
Located in high-crime, busy central neighbourhood
Bright, central and move-in ready, this one-bedroom apartment on University Street sits five minutes from the West End and Tottenham Court Road. The open-plan living area and integrated kitchen maximise space and natural light, while a large double bedroom offers useful built-in storage — a practical city home for a single professional or couple.
Residents benefit from secure entry, concierge/porter services and included hot water and heating, easing running costs and adding convenience. The building’s central location delivers exceptional transport links (Goodge Street, Warren Street and Tottenham Court Road nearby) and immediate access to shops, cafés and cultural amenities.
Considerations for buyers: the flat is compact at 483 sq ft and sits in a high-crime central neighbourhood, so buyers prioritising space or quiet may prefer a different area. Service charge and council tax are above average, and the property is leasehold with a ground rent and 182 years remaining — suitable for typical urban ownership but check costs carefully.
Offered chain free, this property suits first-time buyers or city professionals seeking a low-fuss, well-located base with good rental or future resale appeal given the prime central location and concierge service.
1 bedroom flat for sale in Streatham Street, Bloomsbury, London, WC1A — £480,000 • 1 bed • 1 bath • 442 ft²
1 bedroom flat for sale in Paramount Court, University Street, London, WC1E — £550,000 • 1 bed • 1 bath • 580 ft²
1 bedroom apartment for sale in Whitfield Street, London, W1T — £625,000 • 1 bed • 1 bath • 444 ft²
Studio flat for sale in University Street, London, WC1E — £375,000 • 1 bed • 1 bath • 301 ft²
1 bedroom apartment for sale in Central St Giles Piazza, Tottenham Court Road, London, WC2H — £615,000 • 1 bed • 1 bath • 424 ft²
1 bedroom apartment for sale in 7 High Holborn, London, WC1V — £600,000 • 1 bed • 1 bath • 492 ft²






















