### Key Features:
- Freehold office space for sale at Bruges Place, Camden
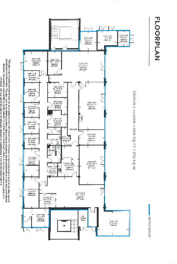
- Substantial size: 4,005 square feet
- 13 dedicated parking spaces
- Modern, dual aspect design with large windows for natural light
- Gated estate providing security and exclusivity
- Equipped with gas central heating and alarm systems
- Flexible layout with both open-plan and private offices
- Vibrant Camden location with excellent transport links and amenities
---
Discover a remarkable investment opportunity in Camden with this spacious freehold office situated in a secure gated estate. With a generous 4,005 square feet of contemporary workspace, this property boasts an abundance of natural light through its expansive windows, creating a welcoming and productive environment. The layout features a mixture of open-plan offices and private spaces, ideal for accommodating various business needs.
Benefit from 13 designated parking spaces and modern amenities including gas central heating and a fully alarmed security system. The neighborhood is alive with creativity, located just 2.5 miles from central London and well-served by public transport. Camden offers a rich blend of shops, restaurants, and cultural experiences, making it a thriving hub for businesses.
While this office is ready for immediate occupancy, the flexible layout allows for renovations or personalized adjustments to suit your operational needs. Priced attractively at £1,995,000 + VAT, or available for lease at £142,500 per annum + VAT, this opportunity is one not to be missed. Secure your future in one of London’s most vibrant districts today!
Office for sale in Modern Office Space, Unit 1 Centric Close, London, NW1 7EP, NW1 — POA • 1 bed • 1 bath • 2284 ft²
Office for sale in 205 Royal College Street, Camden, NW1 0SG, NW1 — £1,100,000 • 1 bed • 1 bath • 1856 ft²
Office for sale in 12 West Hampstead Mews, London, NW6 3BB, NW6 — £595,000 • 1 bed • 1 bath • 900 ft²
Office for sale in 75 Bayham Street, London, NW1 0AA, NW1 — £3,150,000 • 1 bed • 1 bath • 4866 ft²
Office for sale in Gloucester Avenue, London, NW1 — £3,000,000 • 1 bed • 1 bath • 5000 ft²
Office for sale in 14-15 Mandela Street, Camden, London, NW1, London, NW1 0DU, NW1 — POA • 1 bed • 1 bath • 7344 ft²










































