Spacious period home with large garden and strong modernisation potential.
Commanding elevated position with panoramic countryside views
Benbridge House is an elegant period detached home occupying a commanding, elevated position in Bishops Tawton with far-reaching countryside views, including Tawstock Castle. Cherished by the same family for over 30 years and offered chain free, the property combines substantial internal space with a private, mature garden and sweeping driveway.
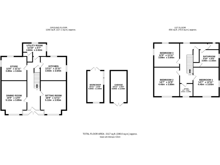
The accommodation is generous and well balanced: two bright reception rooms with rural outlooks, a flexible third reception room (former dairy) ideal as a study or snug, and a kitchen/breakfast room with clear potential to become a contemporary open-plan hub. A semi-galleried landing leads to three double bedrooms and a large family bathroom with both bath and separate shower.
Practical strengths include a detached garage with upper store, ample parking, mains gas central heating, double glazing fitted after 2002, fast broadband and no recorded flood risk. The house sits on a large plot in a village with good primary schools and easy access to Barnstaple.
Notes of caution: the house dates from the 1930s–1940s and, while well loved, will benefit from modernisation and possible insulation upgrades (cavity walls assumed uninsulated). The property has scope for extension subject to planning permission, but buyers should factor in renovation costs and the above-average council tax band when assessing affordability.
4 bedroom detached house for sale in Bishops Tawton, Barnstaple, Devon, EX32 — £415,000 • 4 bed • 1 bath • 2400 ft²
3 bedroom bungalow for sale in Sentry Lane, Bishops Tawton, Barnstaple, Devon, EX32 — £400,000 • 3 bed • 2 bath • 1553 ft²
3 bedroom semi-detached house for sale in River View, Bishops Tawton, Barnstaple, Devon, EX32 — £295,000 • 3 bed • 1 bath • 1025 ft²
4 bedroom detached house for sale in East Street, Bishops Tawton, Barnstaple, Devon, EX32 — £395,000 • 4 bed • 1 bath • 1376 ft²
4 bedroom detached house for sale in Mount Pleasant, Bishops Tawton, Barnstaple, EX32 — £550,000 • 4 bed • 3 bath • 1697 ft²
3 bedroom bungalow for sale in Mount Pleasant, Bishops Tawton, Barnstaple, Devon, EX32 — £350,000 • 3 bed • 1 bath • 900 ft²


































































































































