**Standout Features:**
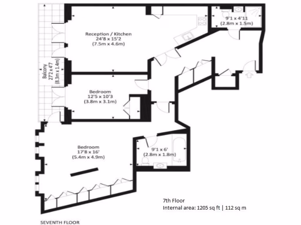
- Spacious 2-bedroom apartment, approximately 1,205 sq ft (112 sqm)
- Private balcony with stunning views
- Luxury amenities: swimming pool, gym, sauna, and 24-hour concierge
- Secure underground parking space
- High-quality finishes with wood flooring and integrated appliances
- Prime Westminster location near attractions and public transport
**Notable Concerns:**
- Leasehold property
- Council tax band: G (considered quite expensive)
Discover a luxurious lifestyle in this stunning two-bedroom apartment at Abell House, 31 John Islip Street, Westminster. Spanning over 1,205 sq ft, it boasts a spacious open-plan living area with direct access to a private balcony, ideal for relaxation or entertaining. Both generously sized bedrooms offer excellent natural light and comfort, complemented by two elegantly designed bathrooms finished to the highest standards.
With a designated underground parking space and exclusive on-site amenities, including a swimming pool, gym, and 24-hour concierge, this apartment provides an unmatched living experience in a prime location. Nestled moments from the River Thames and iconic landmarks like the Houses of Parliament, it offers easy access to the vibrant Victoria Street shopping district and excellent transport links.
While this leasehold property comes with a higher council tax, it represents a rare opportunity for discerning buyers or investors to secure a prestigious residence in one of London’s most sought-after areas. Don’t miss out—schedule your viewing today and explore the potential of living in this luxurious oasis.
3 bedroom apartment for sale in Abell House 31 John Islip Street London SW1P 4FE, SW1P — £2,495,000 • 3 bed • 3 bath • 1561 ft²
2 bedroom apartment for sale in John Islip Street, Victoria, London, SW1P — £2,150,000 • 2 bed • 2 bath • 1261 ft²
3 bedroom apartment for sale in John Islip Street, London, UK, SW1P — £2,495,000 • 3 bed • 3 bath • 1502 ft²
2 bedroom apartment for sale in Abell House, 31 John Islip Street, Westminster, SW1P — £2,200,000 • 2 bed • 2 bath • 1079 ft²
3 bedroom apartment for sale in Abell House, John Islip Street, London, SW1P — £2,300,000 • 3 bed • 2 bath • 1225 ft²
2 bedroom apartment for sale in John Islip Street, London, SW1P — £2,000,000 • 2 bed • 2 bath • 1210 ft²


































