Contemporary energy-efficient house ideal for growing families seeking low running costs.
- Three bedrooms including top-floor master with en-suite
- Dining kitchen and separate sitting room with garden access
- Solar panels with battery storage fitted
- Electric vehicle charging point and off-street parking
- 10-year NHBC warranty on new build
- Freehold tenure
- Internal finishes selectable subject to build stage
- Small-to-average rear garden; three-storey layout involves stairs
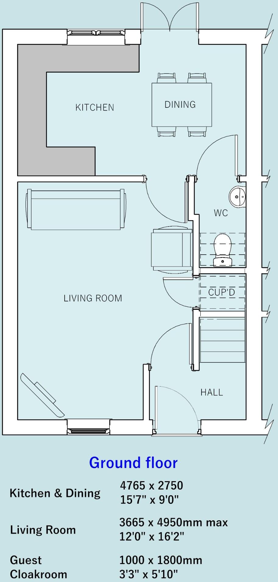
The Errol is a modern three-storey semi-detached home designed for couples or growing families needing clear, adaptable space. The ground floor lays out a generous dining kitchen and separate sitting room with French doors onto the rear garden, giving everyday living and entertaining a practical flow. Built-in wardrobes and a private top-floor master with en-suite add convenience and privacy.
The specification includes contemporary fittings, solar panels with battery storage and an electric vehicle charging point, reducing running costs and future-proofing the home. Off-street parking and a freehold tenure add simple ownership benefits. A 10-year NHBC warranty covers the build, offering peace of mind for new owners.
Be aware this is a new-build plot: internal finishes and some fixture choices are available only while the build remains at the selection stage. The rear garden is small-to-average and the home is arranged over three floors, so buyers should be comfortable with regular stair use. External outlooks are suburban rather than scenic.
2 bedroom semi-detached house for sale in Buchan Way,
Spalding,
PE11 1ZU, PE11 — £186,995 • 2 bed • 1 bath • 773 ft²
3 bedroom semi-detached house for sale in Buchan Way,
Spalding,
PE11 1ZU, PE11 — £239,995 • 3 bed • 1 bath • 882 ft²
5 bedroom detached house for sale in Buchan Way,
Spalding,
PE11 1ZU, PE11 — £579,995 • 5 bed • 3 bath • 2330 ft²
3 bedroom semi-detached house for sale in Buchan Way,
Spalding,
PE11 1ZU, PE11 — £244,995 • 3 bed • 1 bath • 882 ft²
2 bedroom semi-detached house for sale in Buchan Way,
Spalding,
PE11 1ZU, PE11 — £194,995 • 2 bed • 1 bath • 773 ft²
3 bedroom semi-detached house for sale in Buchan Way,
Spalding,
PE11 1ZU, PE11 — £267,995 • 3 bed • 2 bath • 1218 ft²














































