**Standout Features:**
- Prime city center location overlooking the historic Market Square
- Planning permission for conversion into residential apartments and new townhouses
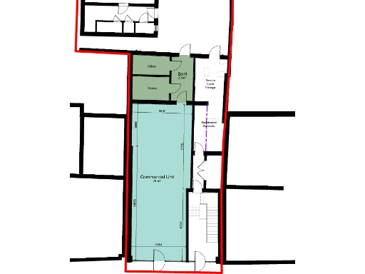
- Mixed-use development comprising 4 flats, 7 mews houses, and a retail space
- Unique Tudor and Georgian architectural style
- Large plot size with potential for additional development
- Garage parking included for townhouses
**Potential Concerns:**
- Requires renovations to optimize space and aesthetic appeal
- Crime rate in the local area is notably high
This exceptional residential and commercial development opportunity at 40 Blue Boar Row, Salisbury, is a prime investment for those looking to capitalize on the city’s vibrant heart. With planning permission already in place, the site promises to transform into a seamless blend of contemporary living and retail space, comprising four fully converted flats and an attractive mews townhouse development featuring seven 3-bedroom homes, each with garage access. The historic architecture, characterized by a stunning mix of Tudor and Georgian design, adds charm and character, making it an ideal choice for families or investors looking for unique rental potential in a bustling area.
While the property offers promising prospects, it does require renovation to meet modern standards, allowing buyers to put their personal touch on the finishing details. Situated in a highly walkable neighborhood brimming with amenities, parks, and schools—including top-rated institutions—this development holds immense potential for creating an exclusive boutique community. Don’t miss the chance to breathe new life into this remarkable site that could yield both immediate and long-term returns. Act quickly; opportunities like this in Salisbury's historic center are rare!
Residential development for sale in Rollestone Street, Salisbury, Wiltshire, SP1 — £900,000 • 12 bed • 1 bath
Pub for sale in 36 Blue Boar Row, Salisbury, Wiltshire, SP1 — £950,000 • 1 bed • 1 bath • 10953 ft²
High street retail property for sale in Market Place, Salisbury, Wiltshire, SP1 — £595,000 • 1 bed • 1 bath • 4138 ft²
Commercial property for sale in Crane Street, Salisbury ***COMMERCIAL***, SP1 — £450,000 • 1 bed • 1 bath • 2514 ft²
Plot for sale in Salt Lane, Salisbury, SP1 — £200,000 • 1 bed • 1 bath • 612 ft²
Shop for sale in Salt Lane, Salisbury, SP1 — £200,000 • 1 bed • 1 bath • 878 ft²


















































