Large family home on a private road with flexible living and garden space.
Six double bedrooms across three floors, ideal for large families or multi-use space
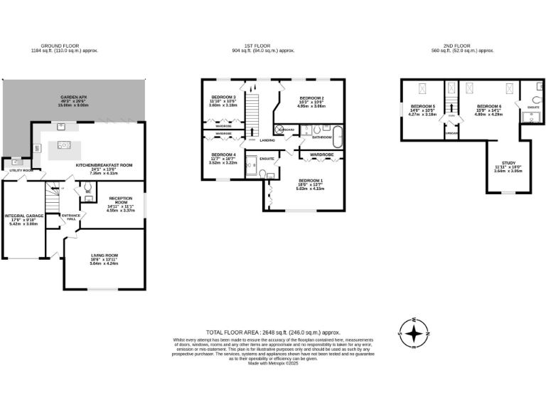
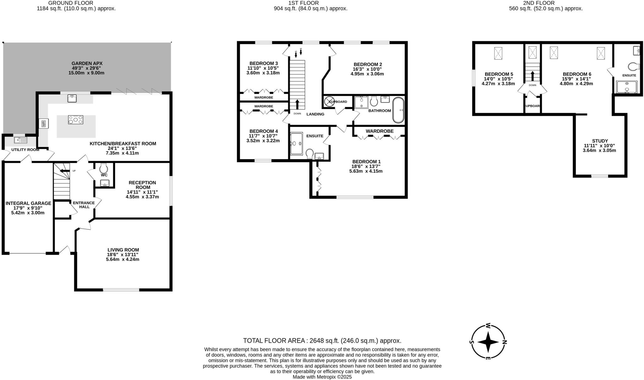
Approximately 2,648 sq ft of accommodation with flexible room layout
Large private rear garden with patio for outdoor dining and play
Integral garage plus driveway providing convenient off-street parking
Freehold tenure; fast broadband and excellent mobile signal
Close to several independent schools and a Good-rated secondary
Council tax is very expensive — factor into annual costs
Local area records higher crime and general area deprivation concerns
Set on a private road in sought-after Aldenham, this six-bedroom detached house offers spacious family living across three floors and about 2,648 sq ft. The ground floor centres on a large contemporary kitchen/breakfast room with island and direct garden access, plus a bright living room, separate reception and useful utility with integral garage. The layout suits busy family life and entertaining.
Four bedrooms on the first floor include a principal suite with fitted wardrobes and en-suite shower; two further double bedrooms and a study/bedroom on the top floor provide flexible space for children, guests or home working. A private rear garden and generous patio create a pleasant outdoor living area, with driveway parking and an integral garage for convenience.
Practical points are clear: the home is freehold, has fast broadband and excellent mobile signal, and falls within reach of highly regarded independent and state schools. Council tax is very expensive and the local area records higher crime levels; buyers should factor these into long-term running costs and safety considerations. A modest service charge of £650 applies.
This property will suit families looking for generous, modern living in a village setting with easy access to transport links. It also offers scope for cosmetic updating to personalise rooms and maximise value for growing households.
4 bedroom semi-detached house for sale in Hilfield Lane, Aldenham, Watford, Hertfordshire, WD25 — £900,000 • 4 bed • 3 bath • 1461 ft²
6 bedroom detached house for sale in Chandos Court, STANMORE, HA7 — £1,600,000 • 6 bed • 4 bath • 3300 ft²
5 bedroom detached house for sale in Park Street Lane, Park Street, St. Albans, AL2 — £2,895,000 • 5 bed • 4 bath • 4500 ft²
5 bedroom house for sale in Summerhouse Lane, Aldenham, Hertfordshire, WD25 — £1,975,000 • 5 bed • 2 bath • 3582 ft²
5 bedroom detached house for sale in Roundbush Lane, Round Bush, Aldenham, Watford, WD25 — £3,000,000 • 5 bed • 3 bath • 3714 ft²
5 bedroom detached house for sale in Hilfield Lane, Aldenham, Hertfordshire, WD25 — £1,500,000 • 5 bed • 2 bath • 2716 ft²


















































































































































