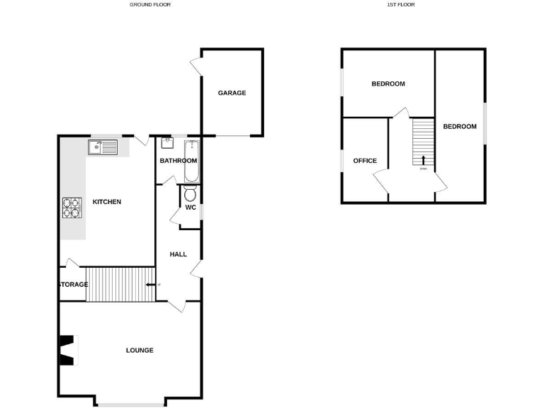
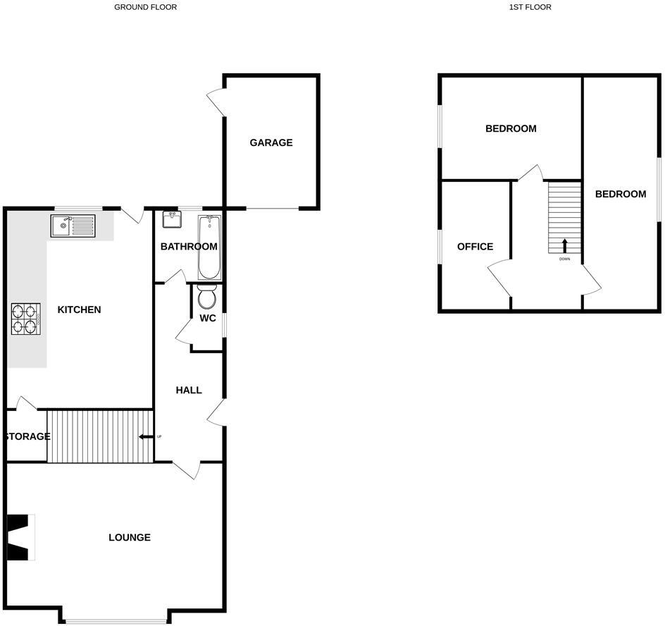
### Standout Features:
- Three spacious bedrooms
- Newly renovated stunning bathroom
- Ample living space with a large kitchen and lounge
- South-facing rear garden with two patio areas and a lawn
- Detached garage and off-street parking
- Located on a highly sought-after road, close to King John School and local shops
- Double glazing throughout for energy efficiency
### Summary Description:
Discover this beautifully updated three-bedroom semi-detached home in a desirable, family-friendly neighborhood. Perfect for first-time buyers or savvy investors, this property features a newly renovated bathroom, a bright, spacious kitchen, and a generous lounge area, providing comfortable living spaces for the whole family. The south-facing garden is a sun-lover's paradise, complete with two patio areas for outdoor entertaining and a lawn for the kids to play.
With fast broadband and excellent mobile signal, you'll be well-connected while enjoying the tranquility of suburban living. The property includes off-street parking, access to a detached garage, and is conveniently located near King John School, making it ideal for growing families. While the overall condition is good, potential buyers may want to consider future enhancements or renovations to truly make it their own. Don’t miss out on this opportunity; homes in this area are highly sought after and won’t be available for long!
3 bedroom semi-detached house for sale in Lower Lambricks, Rayleigh, SS6 — £425,000 • 3 bed • 2 bath • 1034 ft²
3 bedroom detached house for sale in Langford Crescent, Benfleet, SS7 — £450,000 • 3 bed • 1 bath • 1129 ft²
3 bedroom semi-detached house for sale in Kingsmere, Thundersley, SS7 — £375,000 • 3 bed • 1 bath • 896 ft²
3 bedroom semi-detached house for sale in Princes Avenue, Thundersley, SS7 — £450,000 • 3 bed • 2 bath • 880 ft²
3 bedroom semi-detached house for sale in Oakhurst Road, Rayleigh, Essex, SS6 — £450,000 • 3 bed • 1 bath • 1252 ft²
3 bedroom semi-detached house for sale in Wellstead Gardens, Westcliff-On-Sea, SS0 — £580,000 • 3 bed • 1 bath • 1324 ft²






























































