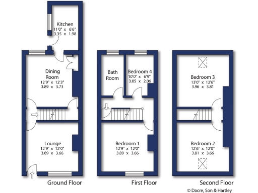
**Standout Features:**
- Four spacious bedrooms
- Two sizeable reception rooms
- Private rear yard
- Stone-built character terrace
- Located in a desirable Bingley area
- Excellent potential for modernization
- Freehold property with cheap council tax
- Close proximity to amenities and schools
**Potential Downsides:**
- Requires significant renovation
- Average-sized plot and small front area
- Possible damp issues noted in living space
- On-street parking only
Discover the charm of this four-bedroom stone terrace in Bingley, brimming with character and inviting opportunities for customization. With two generous reception rooms and a private rear yard, this property offers ample space for family living while retaining its beautiful Victorian façade.
Situated conveniently near Bingley town centre, residents will benefit from a variety of local shops, dining options, and reputable schools, including several rated "Good" or "Outstanding." While this home is in need of significant modernization—including updates to both the interior and potential damp issues—it presents a fantastic opportunity for first-time buyers or families looking to create their dream dwelling in a desirable area. Don’t miss your chance to view this unique property—opportunities like this in such a sought-after location don’t stay on the market for long!
4 bedroom terraced house for sale in Myrtle Avenue, Bingley, BD16 — £250,000 • 4 bed • 1 bath • 1004 ft²
4 bedroom terraced house for sale in Percy Street, Bingley, West Yorkshire, BD16 — £200,000 • 4 bed • 1 bath • 1302 ft²
4 bedroom end of terrace house for sale in Mitchell Terrace, Bingley, West Yorkshire, BD16 — £199,950 • 4 bed • 1 bath • 1073 ft²
3 bedroom terraced house for sale in Myrtle Avenue, Bingley, BD16 — £170,000 • 3 bed • 1 bath • 969 ft²
4 bedroom terraced house for sale in Myrtle Avenue, Bingley, BD16 1EW, BD16 — £210,000 • 4 bed • 1 bath • 1063 ft²
4 bedroom terraced house for sale in Unity Street South, Bingley, BD16 — £225,000 • 4 bed • 1 bath • 1059 ft²


















































