LL12 8LF - Parking for sale in Wynnstay Lane, Marford, Wrexham, LL12

View on Property Piper

Parking for sale in Wynnstay Lane, Marford, Wrexham, LL12

Summary - Ingledene, Wynnstay Lane, Marford LL12 8LF

4 bed 2 bath Parking

Tastefully presented four-bedroom Victorian detached house with garden, parking and good commuter links..
Freehold Victorian detached house, four bedrooms, two bathrooms
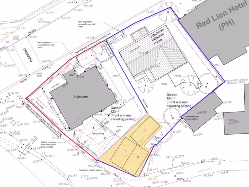
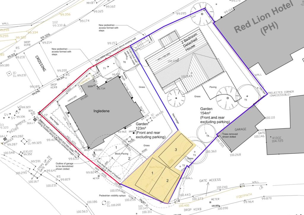
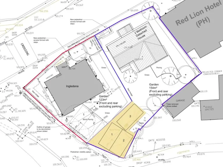
A tastefully presented Victorian detached house offering four bedrooms and two bathrooms across approximately 1,371 sq ft. The property sits on a large plot with an east-facing garden and off-street parking, benefitting from double glazing, a gas boiler with radiators and connections to all mains services. Located in Marford, the home is close to schools, local shops and has excellent road links to Chester, Wrexham and the nearby business park.

The house is offered freehold and shows period character—solid brick walls, chimneys and traditional features—alongside a contemporary open-plan living/dining layout. The current EPC rating is E and the council tax band is F. While presented attractively in many rooms, the property needs renovation in areas and there is assumed lack of cavity insulation in solid walls; buyers should budget for updating kitchen/bathroom fittings and possible energy-efficiency improvements.

This home will suit a family seeking character with scope to personalise, or an investor looking for refurbishment potential in an affluent village setting with very low local crime and fast broadband. Flood risk is nil and mobile signal is excellent. Verify parking provision and any maintenance needs on viewing; some details differ between boards and images, so practical checks are advised.

Property Details

Brochure Descriptions

Image Descriptions

Floorplan Description

Rooms

Textual Property Features

Target Audience

AI Tags

Detected Visual Features

EPC Details

Nearest Bars And Restaurants

,,,,}

Nearest General Shops

,,}

Nearest Grocery shops

,,}

Nearest Supermarkets

,,}

Nearest Religious buildings

,,}

Nearest Medical buildings

,,,}

Nearest Airports

}

Nearest Leisure Facilities

,,,,}

Nearest Tourist attractions

,,}

Nearest Train stations

,,,,}

Nearest Bus stations and stops

,,,,}

Nearest Hotels

,,}

Tags

Local Market Stats

Similar Properties

Meta

High Res Images

Compatible Images

Low res Images

Thumbnails

Raw Images

High Res Floorplan Images

Compatible Floorplan Images

Low res Floorplan Images

FloorplanImages Thumbnail

Raw Floorplan Images