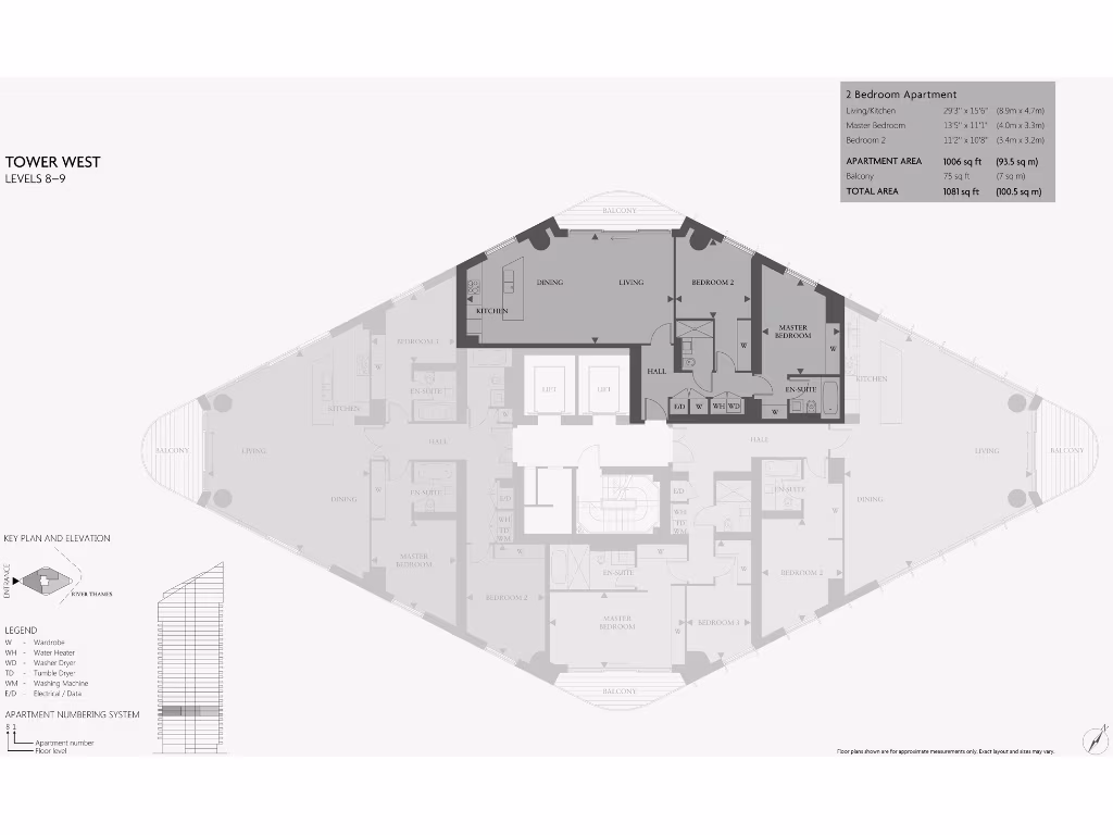
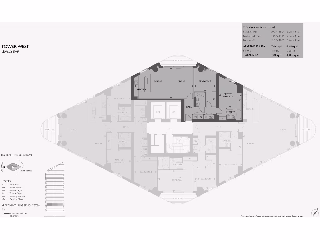
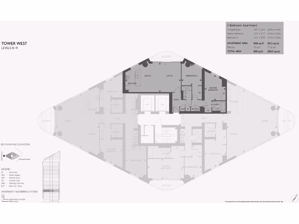
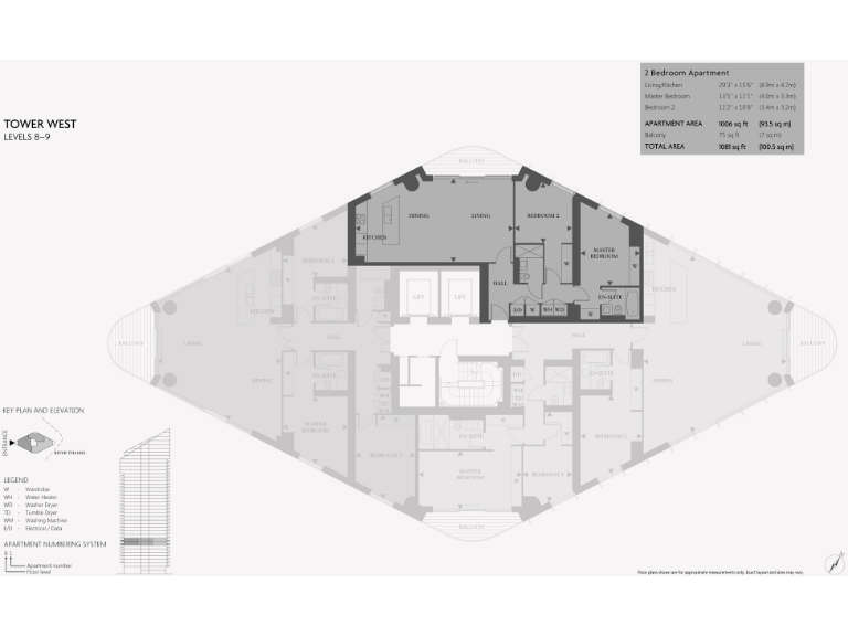
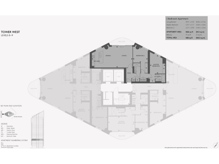
Large, renovated two-bedroom with balcony and premium residents' facilities.
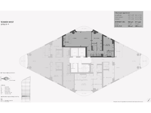
- 1,006 sq ft two-bedroom apartment with open-plan layout
- Private balcony with riverside and city views
- Concierge, gym and indoor swimming pool on site
- Newly renovated finish; move-in ready condition
- Leasehold with 968 years remaining (long lease)
- High annual service charge £11,066 and ground rent £800
- Above-average local crime rate and area deprivation noted
- Excellent mobile signal and fast broadband; good transport links
This two-bedroom apartment in Chelsea Waterfront offers a newly renovated, open-plan layout with expansive floor-to-ceiling windows and a private balcony overlooking the Thames. The property benefits from concierge, on-site gym and an indoor swimming pool, ideal for buyers seeking turnkey, high-amenity riverside living.
A long lease (968 years) gives ownership security, while the 1,006 sq ft size and contemporary finish make the flat attractive for high-net-worth renters or owner-occupiers seeking a prestigious SW10 address. Imperial Wharf Overground is a short walk away, providing fast links across southwest and west London.
Buyers should note material running costs: a high annual service charge (£11,066) and ground rent (£800) affect ongoing affordability. The local area records above-average crime and pockets of deprivation despite the development’s quality; purchasers should weigh these factors for long-term rental demand or resale.
Overall this is a premium, low-flood-risk riverside apartment with strong lifestyle appeal and substantial communal amenities. It suits investors or professionals wanting low-maintenance, central London living, provided the service charges and neighbourhood profile match their budget and expectations.
2 bedroom apartment for sale in Waterfront Drive, London, SW10 — £2,411,000 • 2 bed • 2 bath • 1006 ft²
2 bedroom apartment for sale in Chelsea Waterfront, Kensington & Chelsea, London, SW10 — £2,411,000 • 2 bed • 2 bath • 1006 ft²
2 bedroom flat for sale in Compton House, Waterfront Drive, Chelsea SW10 — £1,650,000 • 2 bed • 2 bath • 1010 ft²
1 bedroom apartment for sale in Chelsea Waterfront, Waterfront Drive, London, SW10 — £1,050,000 • 1 bed • 1 bath • 561 ft²
3 bedroom apartment for sale in Waterfront Drive, Chelsea Waterfront, London, SW10 — £2,250,000 • 3 bed • 2 bath • 1480 ft²
4 bedroom flat for sale in Chelsea Waterfront, Waterfront Drive, London, SW10., SW10 — £5,888,000 • 4 bed • 4 bath • 2327 ft²


















































































































































































