Level coastal retreat with extensive parking and modern renovated interiors.
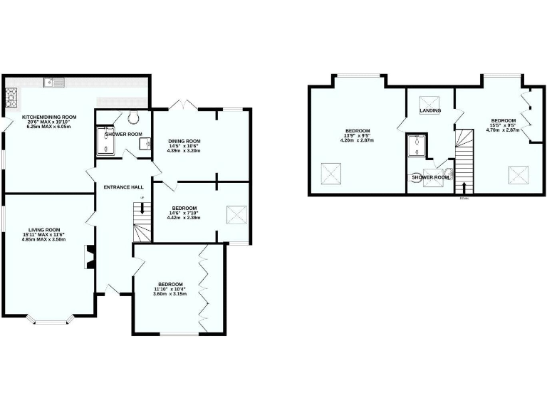
Detached four-bedroom dormer bungalow, recently renovated interiors
Very large tarmac/gravel forecourt — extensive off-street parking
Spacious kitchen/dining room and separate living/dining reception rooms
Two shower rooms; flexible family layout over two levels
Freehold, mains gas heating, double-glazed uPVC windows (install date unknown)
Located on level plot in Furzeham with very low crime and fast broadband
Rear garden size/condition not fully visible from frontage — inspect advised
Built 1950–1966; potential to personalise bathrooms and finishes
Set on a level plot in Brixham’s Furzeham area, this detached four-bedroom dormer bungalow offers flexible family accommodation over two levels. The current owners have recently renovated the interior, creating contemporary living spaces including a large kitchen/dining area and a comfortable living room with modern finishes. The property benefits from excellent mobile and broadband connectivity and very low local crime, making it practical for everyday family life and remote working.
Practical strengths include a very large tarmac/gravel forecourt with extensive off-street parking for multiple vehicles, gas central heating with a boiler and radiators, and uPVC casement double glazing. The home is freehold and sits on a substantial plot with hedged boundaries; however, the rear garden could not be fully inspected from the front and its exact size and condition are not confirmed.
The layout suits families: two ground-floor bedrooms, two first-floor double bedrooms and two shower rooms, plus a generous kitchen/diner and separate reception spaces for entertaining or homework. Local schools include a nearby Good-rated primary and several secondary options including a top 10% Church of England primary and a Good-rated grammar school, supporting family appeal.
Buyers should note the house was constructed in the 1950–1966 period and while recently renovated internally, details such as the double-glazing installation date are unknown. There may be scope to update bathrooms or personalise fittings further to increase value. No flood risk is recorded and council tax falls in a moderate band.
4 bedroom bungalow for sale in Lichfield Drive, Brixham, Devon, TQ5 — £350,000 • 4 bed • 1 bath • 861 ft²
4 bedroom semi-detached bungalow for sale in Carlile Road Brixham, TQ5 — £389,000 • 4 bed • 2 bath • 1282 ft²
4 bedroom detached house for sale in Langley Avenue, Brixham, TQ5 — £530,000 • 4 bed • 2 bath • 1482 ft²
4 bedroom semi-detached bungalow for sale in Windmill Close, Brixham, TQ5 — £355,000 • 4 bed • 2 bath • 1217 ft²
4 bedroom bungalow for sale in Sanders Road, Brixham, TQ5 — £500,000 • 4 bed • 3 bath • 1683 ft²
3 bedroom detached bungalow for sale in Cotmore Close, Brixham, TQ5 — £450,000 • 3 bed • 2 bath • 1332 ft²






























































