Turnkey four-flat freehold close to Hoole village and Chester city centre, ideal for immediate income.
Four self-contained apartments; freehold investment opportunity
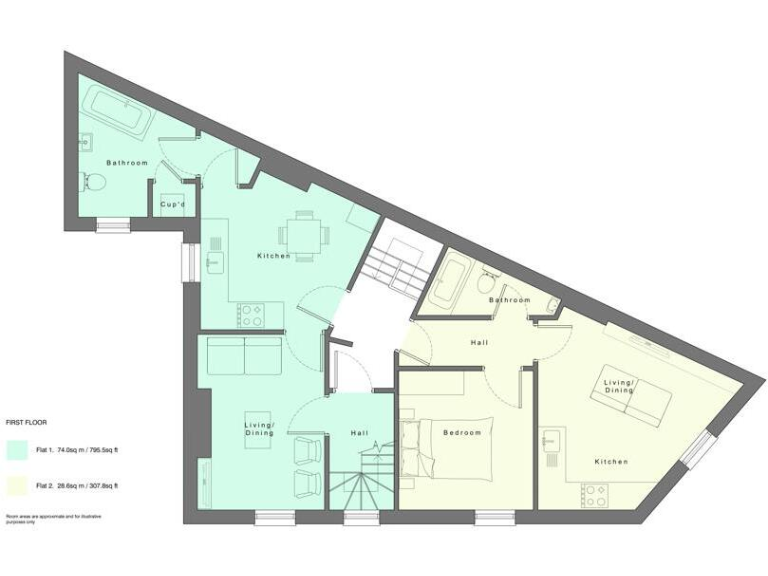
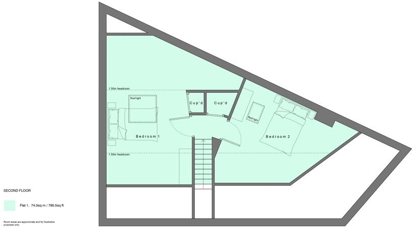
A rare freehold investment in Hoole: four self-contained one- and two-bedroom apartments (total 1,764 sq ft) offered as a turnkey, income-producing block. The building occupies a prominent corner plot within easy walking distance of Hoole village and Chester city centre, benefiting from strong local rental demand among students and professionals. Current management is in place, making this suitable for a buyer seeking immediate rental income.
Internally the flats have modernised kitchens and bathrooms in most suites and present well for continued tenancy. The construction is traditional red brick with sash-style windows, giving period character that appeals to town-centre renters. Broadband and mobile signal are excellent; the wider area is very affluent which supports long-term demand and potential for modest rent growth.
Notable constraints: the plot is small with minimal external amenity space and no obvious off-street parking, which will affect tenant profiles and car-owning occupants. Some apartments have unconventional/triangular layouts and restricted headroom in places, which can limit furniture arrangements and marketability to certain tenants. Tenure details are currently unknown and should be verified prior to exchange.
Overall this is a straightforward buy-to-let opportunity for an investor seeking a compact, well-located freehold with immediate management and rental income. Budget for only minor updating where layouts impose limitations; the property’s corner position and Hoole location are its primary value drivers.
5 bedroom end of terrace house for sale in Ermine Road, Hoole, Chester, CH2 — £500,000 • 5 bed • 4 bath • 1764 ft²
5 bedroom semi-detached house for sale in Shavington Avenue, Chester, Cheshire, CH2 — £600,000 • 5 bed • 3 bath • 2476 ft²
1 bedroom apartment for sale in 25 Hoole Road, Chester, CH2 — £150,000 • 1 bed • 1 bath • 627 ft²
4 bedroom end of terrace house for sale in Lightfoot Street, Hoole, CH2 — £315,000 • 4 bed • 2 bath • 1217 ft²
3 bedroom flat for sale in Thomas Brassey Close, Chester, Cheshire, CH2 — £185,000 • 3 bed • 2 bath • 757 ft²
14 bedroom apartment for sale in Goodwood Close, Chester, Cheshire, CH1 — £1,800,000 • 14 bed • 1 bath






















































