Prime Tyne Valley site for conversions and new traditional homes.
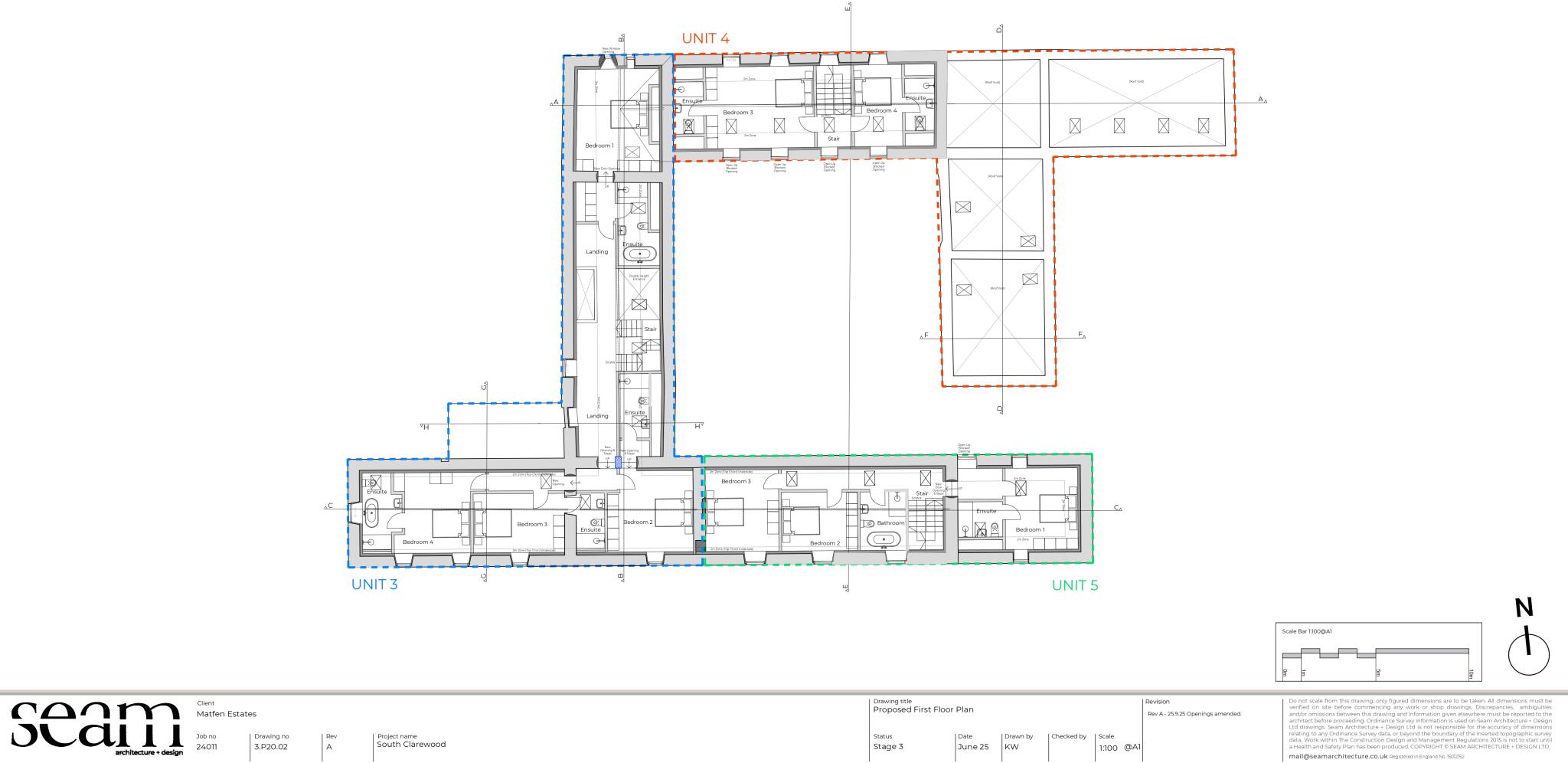
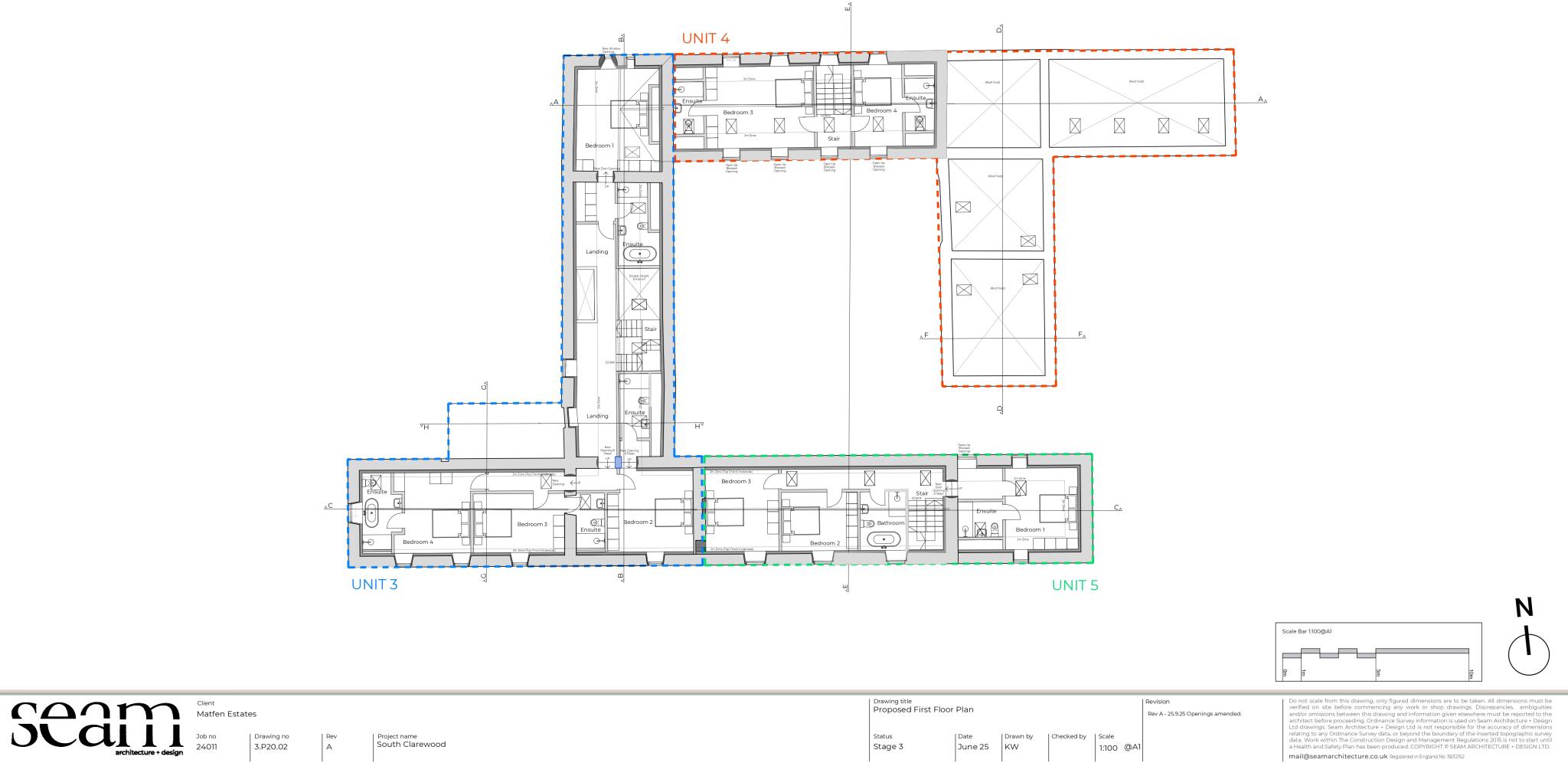
Full planning for three barn conversions (Plots 3–5) already granted
Application pending to replace two contemporary conversions with two new builds
Extensive, private plot with expansive north and south countryside views
Services present but require upgrading by developer (water and electricity)
Consent requires on‑site sewage treatment plant and new highway access
Plots 1 & 2 decision expected November 2025 — risk of delay
Generous gardens and double garages proposed for the new houses
Remote hamlet location; average mobile signal despite fast broadband
South Clarewood Barns is a substantial rural development opportunity in the sought-after Tyne Valley, between Matfen and Corbridge. Full planning permission (24/00304/FUL) exists for three traditional barn conversions (Plots 3–5); an application to substitute two contemporary conversions with two new-build, traditionally styled four-to-five bedroom houses (Plots 1 & 2) is pending determination (expected November 2025). The steading sits in an elevated, private position with far‑reaching north and south views across open farmland.
The scheme has been designed to retain and enhance the site’s agricultural character using natural stone and timber, while providing generous gardens and double garages for the new houses. Services (mains electricity and water) are available on site but will require upgrading by a developer; the consent also requires installation of a sewage treatment plant and a new vehicular access from the highway.
This offering will suit buyers seeking a high‑value rural development or an owner‑developer wanting character conversions alongside two bespoke new houses. Material considerations are clear: required utility upgrades, the need to complete a new access and drainage infrastructure, and the planning decision outstanding for Plots 1 & 2. Flood risk is reported as none and the area benefits from fast broadband and very low crime levels.
Detached house for sale in Coates Barn, Carrshield, NE47 — £120,000 • 1 bed • 1 bath
Plot for sale in Plot 2 Kearsley Farm, Ingoe, Newcastle upon Tyne, Northumberland, NE20 — £190,000 • 1 bed • 1 bath • 3481 ft²
3 bedroom link detached house for sale in Fenwick Tower Barn, Fenwick, Newcastle upon Tyne, Northumberland, NE18 — £275,000 • 3 bed • 2 bath
Land for sale in Throphill Farm - Lot 1, Throphill, Morpeth, Northumberland, NE61 — £695,000 • 1 bed • 1 bath
Plot for sale in Field House, Hepscott, Morpeth, Northumberland, NE61 — £950,000 • 1 bed • 1 bath
8 bedroom detached house for sale in Blue House Farm, Nedderton, NE22 6BD, NE22 — £1,500,000 • 8 bed • 2 bath • 4283 ft²


































































