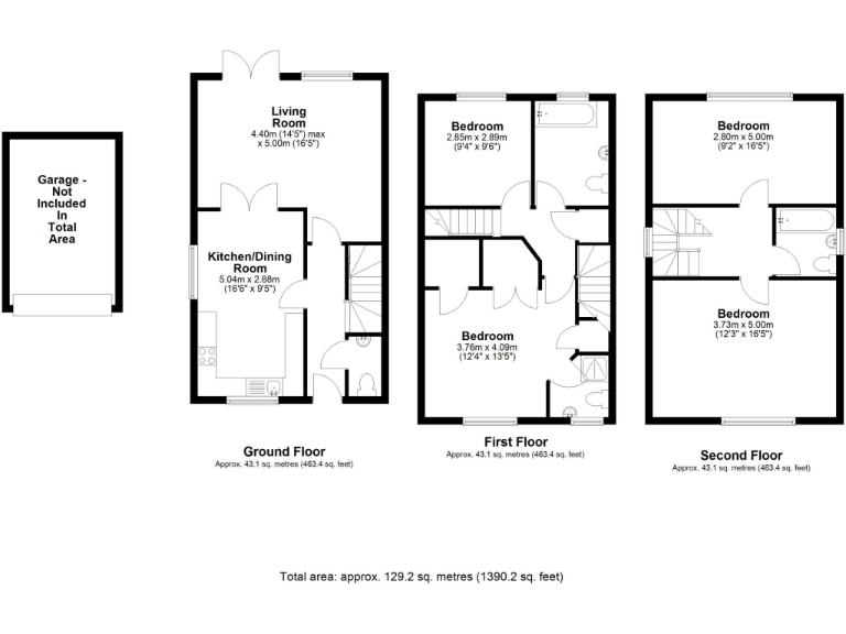
Quiet cul-de-sac living with three-floor flexibility and garage parking.
Four double bedrooms across three floors, ideal for family or teenagers
Principal bedroom with en-suite; three bathrooms in total
Bright sitting room with French doors to the garden
Kitchen dated and likely needs modernisation or refitting
Driveway parking for multiple cars plus single garage
Decent plot size with garden offering improvement potential
Built early 2000s, double glazed, mains gas heating
Chain free and freehold, no flood risk
Set in a quiet cul-de-sac in popular Dilton Marsh, this four-bedroom detached home offers versatile family living over three floors. The principal bedroom includes an en-suite, and two top-floor double bedrooms provide privacy for teenagers or guests. Spacious sitting room with French doors opens onto a decent rear garden that has clear potential for landscaping or extension subject to permissions.
The house measures about 1,200 sq ft and sits on a decent plot with driveway parking and a single garage. Built in the early 2000s with cavity walls and double glazing, the property benefits from mains gas central heating and low local crime. It is offered freehold and chain free, making it straightforward for a prompt move.
Practical points: the kitchen and some interior finishes show their age and would benefit from updating to suit modern tastes. While the layout is flexible and family-friendly, the home is average in overall size compared with larger detached houses. Broadband speeds are fast and local schools are rated good, supporting family life and home working.
This property will suit buyers seeking a comfortable, ready-to-live-in detached house in a village setting, with scope to add value through cosmetic refurbishment and garden improvement. No flood risk is recorded and local countryside walks are on the doorstep.
4 bedroom detached house for sale in Lansdowne Close, Dilton Marsh, BA13 — £400,000 • 4 bed • 3 bath • 1332 ft²
4 bedroom detached house for sale in Shepherds Mead, Dilton Marsh, BA13 — £325,000 • 4 bed • 2 bath • 1055 ft²
5 bedroom detached house for sale in Shepherds Mead, Dilton Marsh, BA13 — £425,000 • 5 bed • 3 bath • 1461 ft²
4 bedroom detached house for sale in Shepherds Mead, Dilton Marsh, BA13 — £425,000 • 4 bed • 1 bath • 1484 ft²
4 bedroom detached house for sale in High Street, Dilton Marsh, BA13 — £425,000 • 4 bed • 3 bath • 1614 ft²
5 bedroom detached house for sale in St Mary's Lane, Dilton Marsh, BA13 — £750,000 • 5 bed • 3 bath • 2284 ft²






































































































