**Standout Features:**
- Planning permission granted for a detached family home.
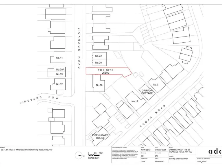
- Sought-after location near Royal Bushy Park and local station.
- Potential for a spacious four-bedroom residence, valued around £1.45M to £1.5M once built.
- Chain-free sale for smooth transactions.
- Nice garden and garage included.
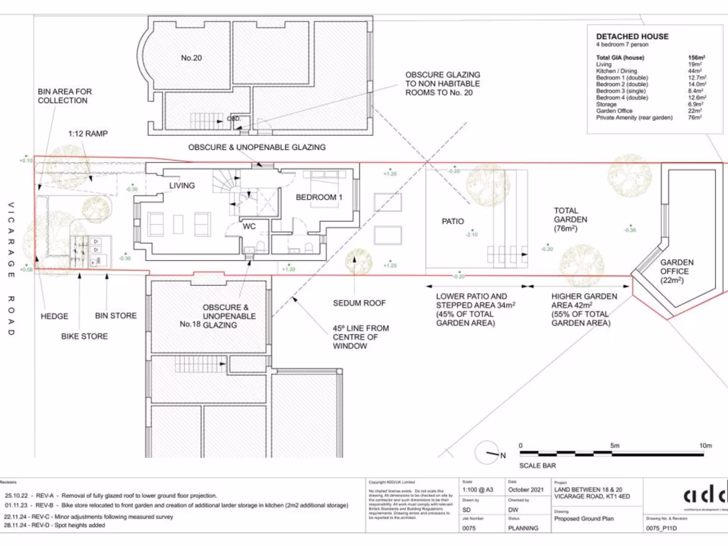
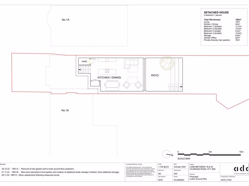
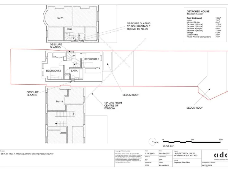
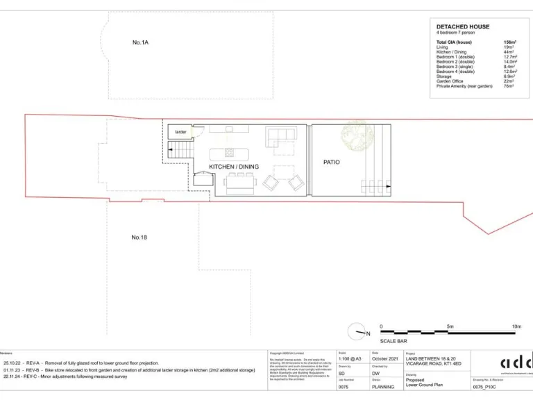
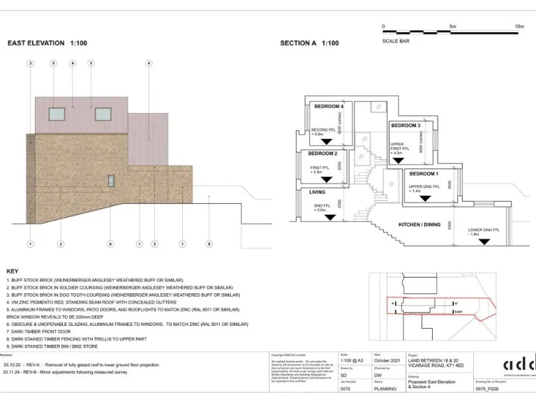
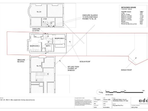
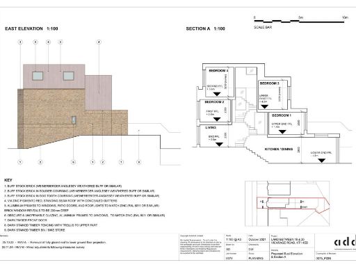
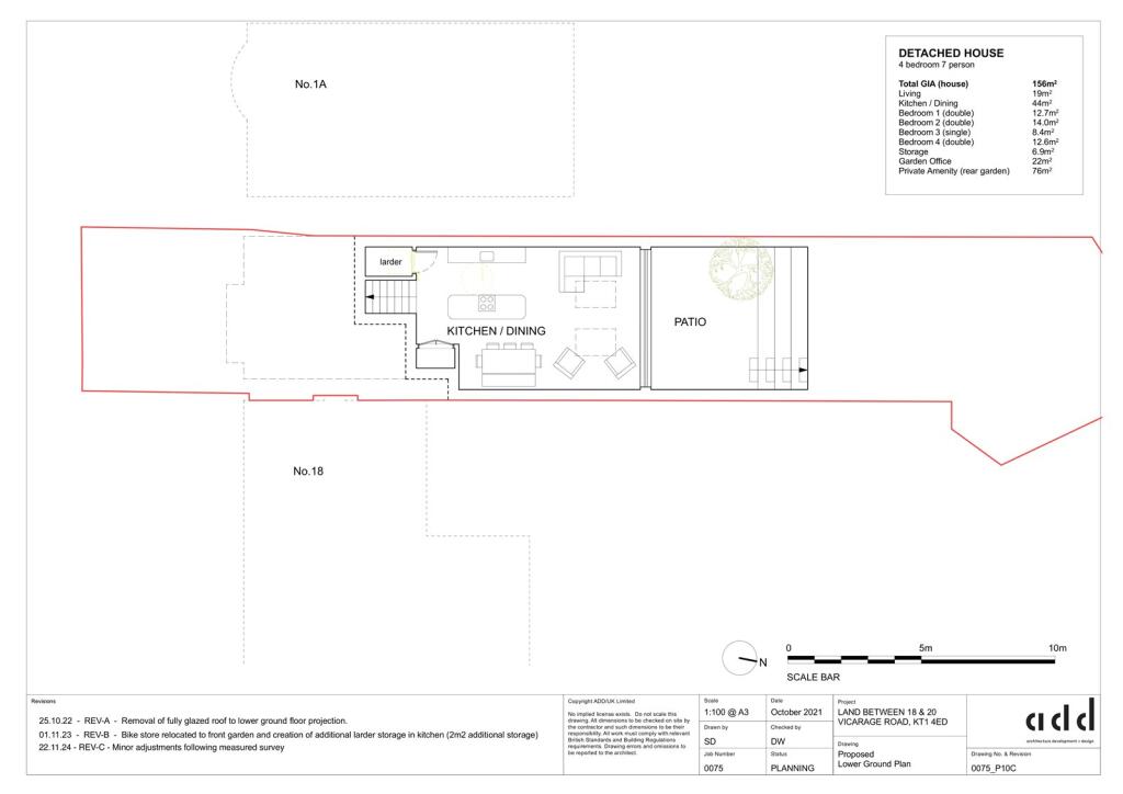
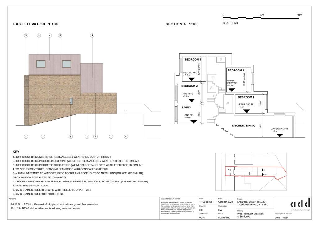
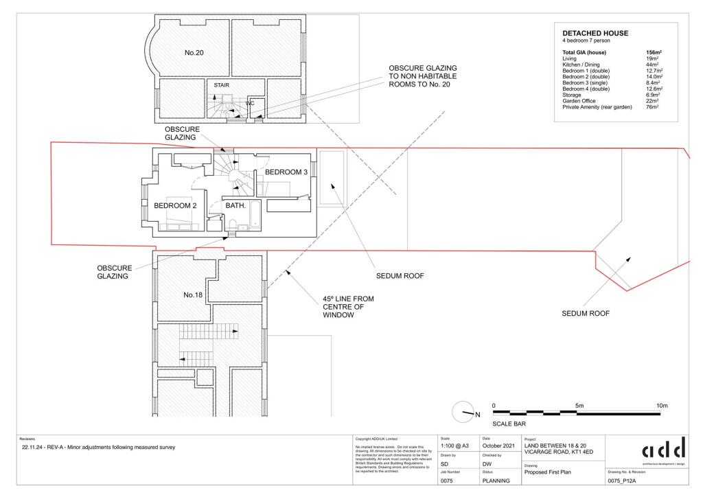
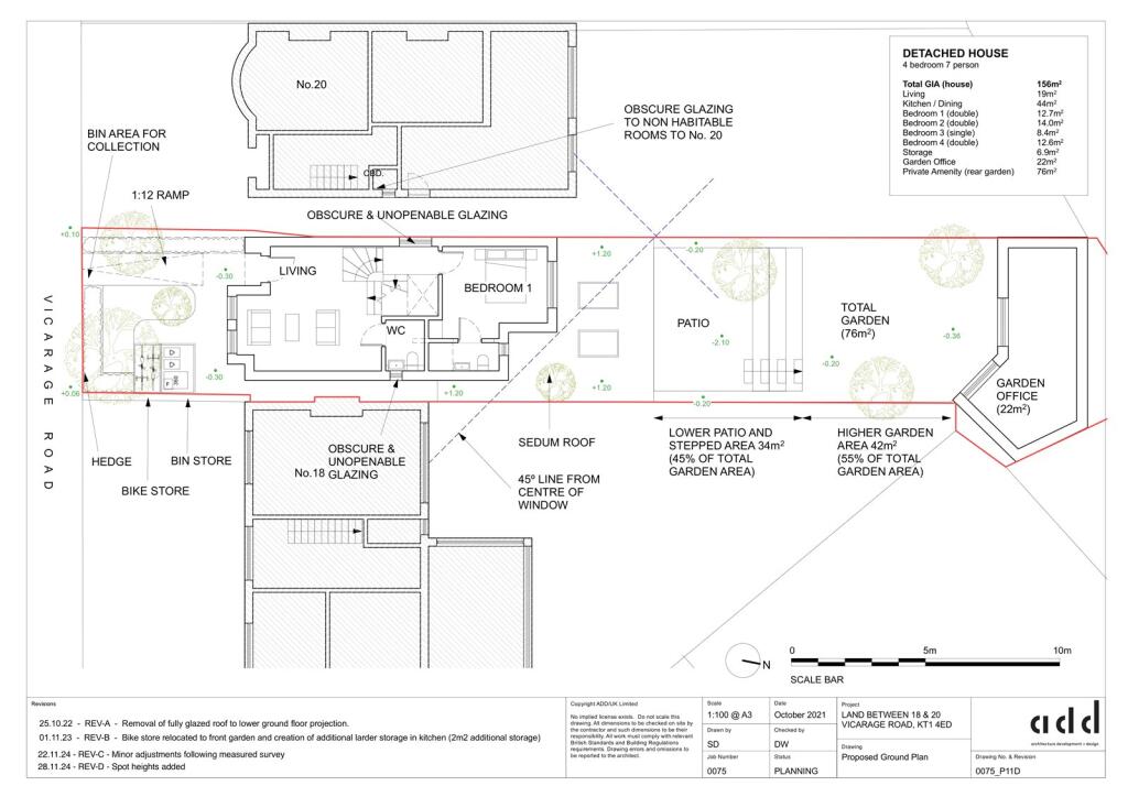
Seize the rare opportunity to create your dream family home in the desirable area of Vicarage Road, Hampton Wick. With planning permission secured for a contemporary detached house offering four generous bedrooms, ample living areas, and a beautiful rear garden, this plot is the canvas for your future. The prime location places you just moments from the serene Royal Bushy Park and conveniently close to transport links, making commuting effortless.
Imagine the possibilities for a modern, energy-efficient home, reflecting your personal style, in a community known for its strong educational institutions, including outstanding primary and secondary schools. While this plot is currently unbuilt, the future value once developed could reach an impressive £1.45M to £1.5M, making it a wise investment with immense earning potential. However, please note this is land only, and any developments will need to account for construction costs and additional permitting requirements. Act quickly—opportunities like this don't last long!
Plot for sale in Oldfield Road, Hampton, TW12 — £330,000 • 2 bed • 1 bath • 839 ft²
Residential development for sale in Park Road, Hampton, Middlesex, TW12 — £700,000 • 1 bed • 1 bath • 2067 ft²
5 bedroom detached house for sale in Park Road, Hampton, Middlesex, TW12 — £700,000 • 5 bed • 1 bath • 2067 ft²
4 bedroom semi-detached house for sale in High Street, Hampton Wick, Surrey, KT1 — £999,950 • 4 bed • 1 bath • 1528 ft²
2 bedroom maisonette for sale in Vicarage Road, Kingston Upon Thames, KT1 — £650,000 • 2 bed • 1 bath • 1142 ft²
3 bedroom terraced house for sale in Park Road, Kingston upon Thames, KT1 — £849,999 • 3 bed • 1 bath • 1027 ft²






















































