NW7 4JP - 4 bed spacious detached family home in Hendon, NW7 4JP

View on Property Piper

4 bedroom detached house for sale in The Reddings, London, NW7

Summary - The Reddings, NW7 4JP NW7 4JP

4 bed 2 bath Detached

Large versatile layout with loft conversion and Mill Hill views.
Detached freehold house with garage, driveway and front and rear gardens
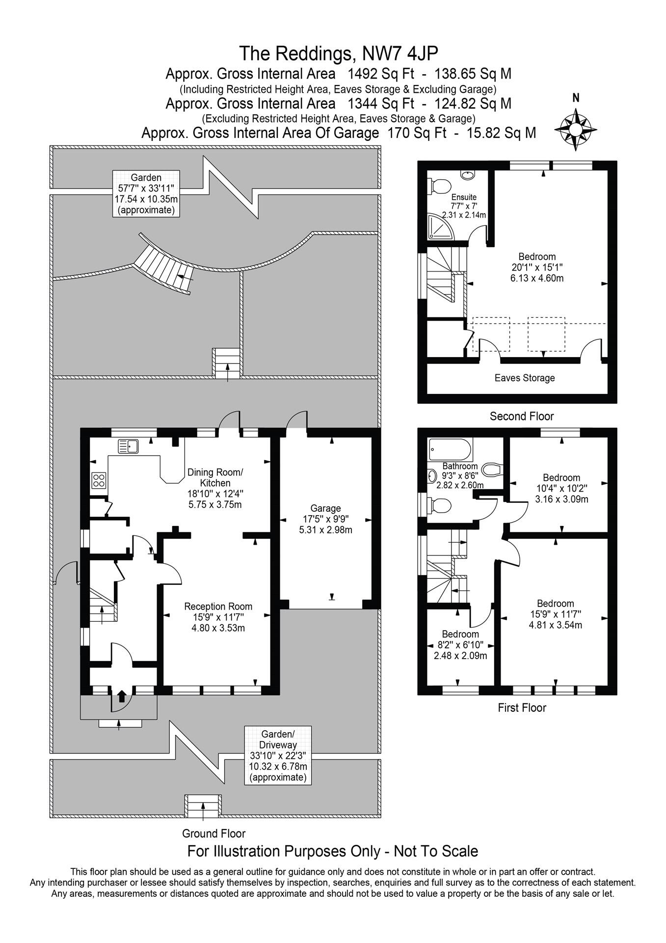
Set on one of Mill Hill’s higher points, this freehold detached house offers substantial family living across approximately 1,492 sq ft. The layout includes four well-proportioned bedrooms, a loft conversion providing extra accommodation or home‑office space, two bathrooms and a reception area that enjoys plentiful natural light and views towards Mill Hill. A garage, driveway and decent front and rear gardens complete the practical outdoor offering.

The property suits growing families who value space, off‑street parking and proximity to highly regarded local schools, including several state and independent options rated Good or Outstanding. The site benefits from low local crime, excellent mobile signal and no flood risk, all in a very affluent neighbourhood with convenient transport links and green spaces nearby.

The house does need some updating: the kitchen is dated and would benefit from modernization, and the walls are assumed to be cavity without added insulation, so improving energy performance is a sensible early investment. Council tax is described as quite expensive; buyers should factor ongoing running costs into their budgets.

Overall this detached home offers immediate liveability with clear scope to add value through sensible refurbishment and insulation improvements. Prospective buyers are advised to commission a full survey and services checks to verify condition and costs before committing.

Property Details

Image Descriptions

Floorplan Description

Rooms

Textual Property Features

Target Audience

AI Tags

Detected Visual Features

EPC Details

Nearby Schools

Nearest Bars And Restaurants

,,,,}

Nearest General Shops

,,}

Nearest Grocery shops

,,}

Nearest Supermarkets

,,}

Nearest Religious buildings

,,}

Nearest Medical buildings

,,,}

Nearest Airports

,}

Nearest Leisure Facilities

,,,,}

Nearest Tourist attractions

,,}

Nearest Train stations

,,,,}

Nearest Bus stations and stops

,,,,}

Nearest Hotels

,,}

Tags

Local Market Stats

AirBnB Data

Similar Properties

Meta

High Res Images

Compatible Images

Low res Images

Thumbnails

Raw Images

High Res Floorplan Images

Compatible Floorplan Images

Low res Floorplan Images

FloorplanImages Thumbnail

Raw Floorplan Images