Affordable three-bed renovation near Gravesend station — sold at Modern Auction, fees and reserve apply.
Victorian mid-terrace, freehold, approx. 711 sq ft
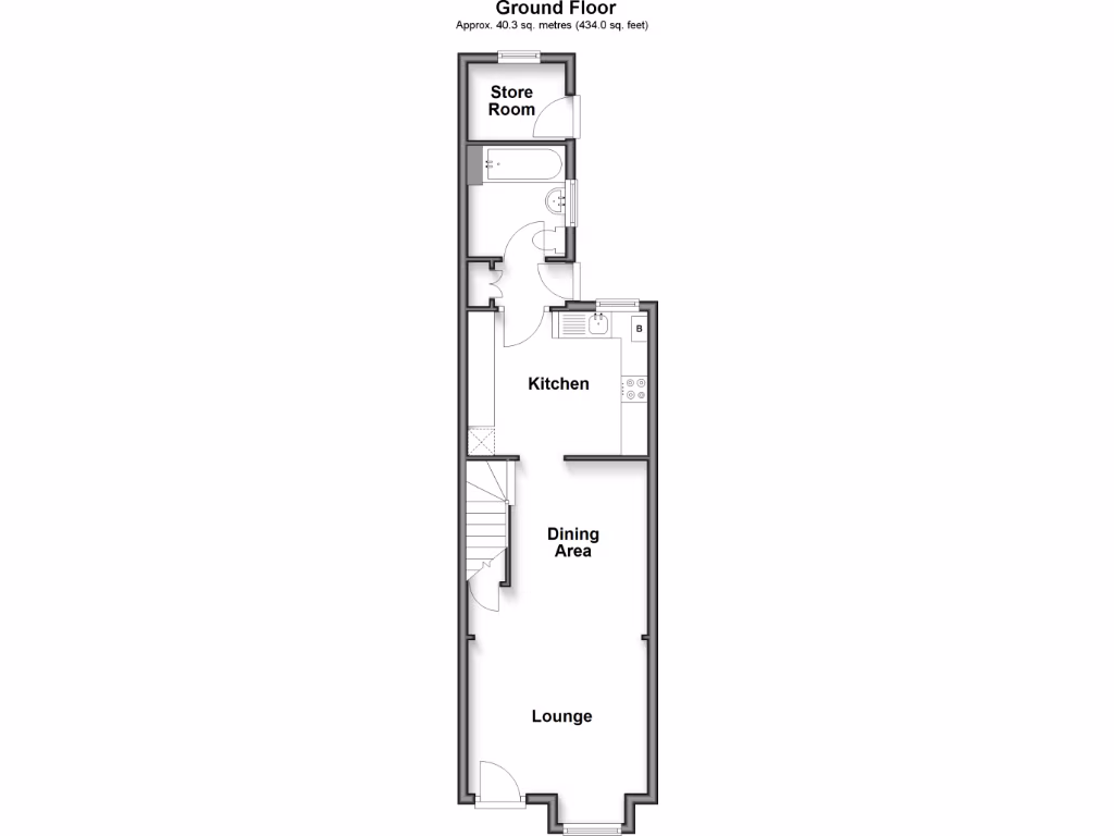
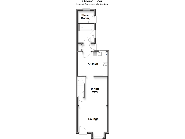
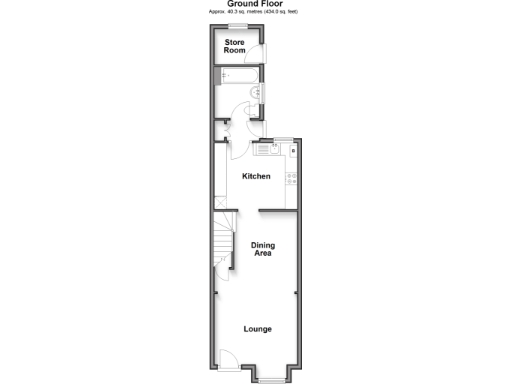
A classic Victorian mid-terrace offering three bedrooms across compact, practical living space. At around 711 sq ft, the house is best suited to buyers seeking an affordable starter home or a refurbishment project close to Gravesend town centre and the train station. The property is freehold and benefits from double glazing, mains gas heating and a low-maintenance rear garden.
This home requires renovation and updating: walls are likely uninsulated solid brick, some rooms are small, and fittings may need replacement. The sale will proceed by Modern Auction — an undisclosed reserve price applies and buyer’s fees will be payable, so budget for auction charges and proceed with pre-auction legal checks.
Location is a strong practical draw: schools (including two outstanding grammar schools) and local amenities are within reach, and the station is walkable for commuters. The immediate area shows higher crime and relative deprivation indicators, which should be weighed against the property’s price and potential upside for improvement.
For a buyer prepared to renovate, this mid-terrace presents clear value: period character, a bay-fronted lounge/diner, and scope to modernise the kitchen and bathroom for uplift. Verify structural, services and legal details before bidding, and allow time and budget for works and auction-related costs.
3 bedroom terraced house for sale in May Road, Gillingham, Kent, ME7 — £180,000 • 3 bed • 1 bath • 638 ft²
3 bedroom maisonette for sale in Milton Road, Gravesend, Kent, DA12 — £110,000 • 3 bed • 1 bath • 790 ft²
3 bedroom terraced house for sale in 81 Peacock Street, Gravesend, Kent, DA12 1EG, DA12 — £150,000 • 3 bed • 1 bath
2 bedroom terraced house for sale in Holborough Road, Snodland, Kent, ME6 — £250,000 • 2 bed • 2 bath • 840 ft²
3 bedroom terraced house for sale in Rosebery Road, Gillingham, Kent, ME7 — £220,000 • 3 bed • 1 bath • 1430 ft²
3 bedroom semi-detached house for sale in Parrock Avenue, Gravesend, Kent, DA12 — £425,000 • 3 bed • 1 bath • 1285 ft²






























































