**Standout Features:**
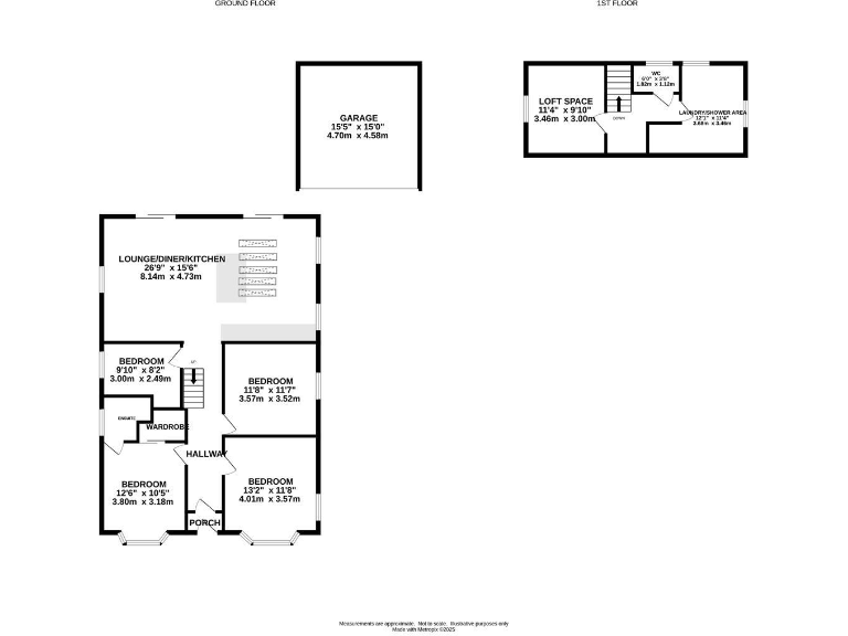
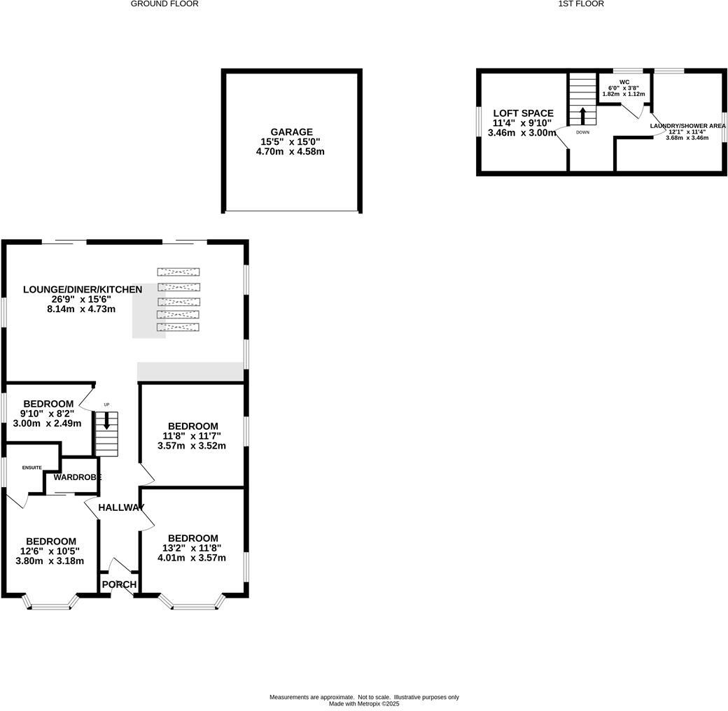
- Four spacious bedrooms, including a master suite with ensuite and walk-in wardrobe
- Large open-plan kitchen and living area, enhanced by modern skylights
- Detached garage and off-road parking for multiple vehicles
- Mature, enclosed garden—ideal for relaxing or entertaining
- Located in a sought-after village with local shops and excellent transport links
**Potential Concerns:**
- Leasehold tenure may be a downside for some buyers
- Cavity walls with no assumed insulation could affect energy efficiency
- Average-sized plot may limit expansion possibilities
---
Discover this inviting four-bedroom detached bungalow nestled on the tranquil Sagars Road, just a stroll away from the vibrant Handforth Village. This beautifully presented home boasts a spacious, modern open-plan kitchen and living area, perfect for family gatherings, featuring skylights that fill the space with natural light. The master bedroom comes equipped with a luxurious ensuite and a generous walk-in wardrobe, providing a personal retreat. An additional fourth bedroom currently serves as a study, allowing flexibility to suit your lifestyle needs.
The property is complemented by a sizeable detached garage and ample off-road parking, while the mature garden offers a peaceful outdoor space for relaxation and play. Families will appreciate the nearby well-rated schools and local amenities, as well as fast transport links to Manchester and London.
While the leasehold nature and certain energy efficiency concerns may require consideration, this home represents a unique opportunity in a desirable area, blending comfort, convenience, and future potential. Don’t miss out on making this stunning property your family’s sanctuary!
2 bedroom bungalow for sale in Bosden Close, Wilmslow, SK9 — £330,000 • 2 bed • 1 bath • 921 ft²
2 bedroom semi-detached bungalow for sale in Clay Lane, Handforth, SK9 — £367,500 • 2 bed • 1 bath • 753 ft²
3 bedroom detached bungalow for sale in Bulkeley Road, Handforth, Wilmslow, SK9 — £650,000 • 3 bed • 2 bath • 1955 ft²
3 bedroom bungalow for sale in Windsor Grove, Cheadle Hulme, Cheadle, Greater Manchester, SK8 — £575,000 • 3 bed • 1 bath • 928 ft²
2 bedroom bungalow for sale in Haydock Drive, Timperley, Altrincham, WA15 — £475,000 • 2 bed • 1 bath • 1035 ft²
3 bedroom detached bungalow for sale in Spath Walk, Cheadle Hulme, SK8 — £575,000 • 3 bed • 2 bath • 1529 ft²


























































































