Ready-to-move-in two-bedroom flat with park views and convenient town access.
Chain-free ground-floor maisonette, newly refurbished throughout
Overlooks Northcroft Park; short walk to town centre and transport links
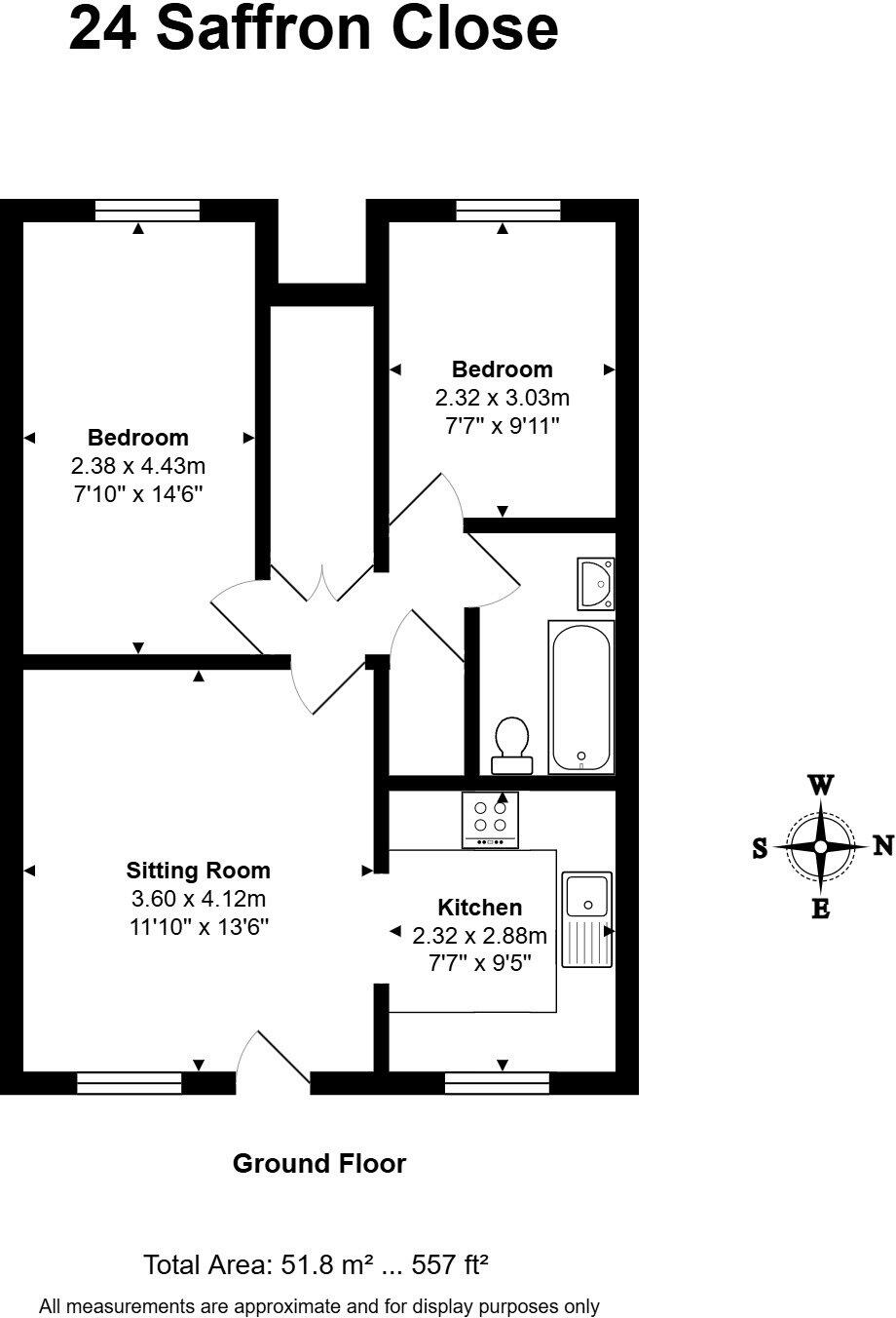
Two bedrooms, approximately 557 sq ft — compact living footprint
Share of freehold with 986 years remaining on lease
Off-street parking available
Electric night storage heaters; potential higher running costs
Annual service charge c. £1,200
EPC rating D — scope to improve energy efficiency
This renovated two-bedroom ground-floor maisonette offers a genuinely move-in ready home with practical commuter appeal. Finished throughout to a modern standard, the property features a new fitted kitchen and contemporary bathroom, bright rooms and attractive views over Northcroft Park. The long lease (986 years) and share of freehold provide secure tenure for buyers and investors alike.
Located close to Newbury town centre, the flat benefits from easy access to rail links, shops and local parks. Off-street parking and low flood risk add to everyday convenience, while nearby good and outstanding schools suit buyers with young families or those planning to rent to family tenants.
Buyers should note the compact overall size (c. 557 sq ft) and an annual service charge of about £1,200. Heating is by electric night storage heaters, which may be less efficient and could influence running costs compared with gas-heated homes. EPC rating D is reflective of the current thermal performance.
Overall this is a practical, low-hassle purchase for first-time buyers or buy-to-let investors seeking a modern, centrally positioned property with a lengthy lease and parking — sold chain-free and ready to occupy.
2 bedroom apartment for sale in Saffron Close, Newbury, Berkshire, RG14 — £225,000 • 2 bed • 1 bath • 659 ft²
2 bedroom apartment for sale in Mayflower House, Rockingham Road, Newbury, Berkshire, RG14 — £230,000 • 2 bed • 2 bath • 793 ft²
2 bedroom maisonette for sale in Westfield Way, Newbury, Berkshire, RG14 — £170,000 • 2 bed • 1 bath • 661 ft²
2 bedroom apartment for sale in Craven Road, Newbury, Berkshire, RG14 — £215,000 • 2 bed • 1 bath • 596 ft²
1 bedroom terraced house for sale in Charlton Place, Newbury, Berkshire, RG14 — £195,000 • 1 bed • 1 bath • 449 ft²
2 bedroom apartment for sale in Two Rivers Way, Newbury, Berkshire, RG14 — £215,000 • 2 bed • 2 bath • 631 ft²






































