Contemporary four-bedroom home with garage, garden and solar panels.
Detached four-bedroom house built 2021, presented in show-home condition
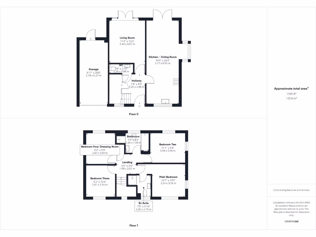
Open-plan kitchen/diner with skylights and French doors to garden
Main bedroom with en suite; versatile fourth bedroom/dressing room
Integral garage, driveway parking and solar panels reduce running costs
Freehold tenure; mains gas boiler and radiators, fast broadband
High flood risk—likely higher insurance and mitigation costs
Local area records higher crime and deprivation—affects resale/tenancy
Popular location near good primary and secondary schools and transport links
Move-in ready detached house built 2021, presented to a show-home standard across light, neutral interiors. The open-plan kitchen/diner and living room create a bright, family-focused ground floor with French doors to a private rear garden. Solar panels and an integral garage with driveway add practical savings and storage for everyday family life.
Four well-proportioned bedrooms include a main bedroom with en suite and a versatile fourth room ideal as a dressing room or home office. The contemporary main bathroom and modern fittings throughout reduce immediate maintenance needs and suit buyers wanting a ready-to-live-in home close to local schools and transport links.
Buyers should note material neighbourhood factors: this postcode records higher crime levels, higher area deprivation, and a high flood risk. These issues may affect insurance costs and long-term resale considerations. The property is freehold with mains gas central heating and fast broadband, making it suited to families seeking convenience, or investors looking for a low-upkeep modern asset with potential rental appeal.
3 bedroom detached house for sale in Stanley Parkway, Stanley, Wakefield, West Yorkshire, WF3 — £340,000 • 3 bed • 2 bath • 1130 ft²
3 bedroom detached house for sale in Stanley Parkway, Stanley, Wakefield, West Yorkshire, WF3 — £335,000 • 3 bed • 2 bath • 1098 ft²
3 bedroom detached house for sale in Stanley Parkway, Wakefield, WF3 — £350,000 • 3 bed • 2 bath • 1210 ft²
3 bedroom detached house for sale in Beamshaw Way, Stanley, Wakefield, West Yorkshire, WF3 — £340,000 • 3 bed • 3 bath • 1115 ft²
4 bedroom detached house for sale in Park Hill View, Wakefield, West Yorkshire, WF1 — £400,000 • 4 bed • 2 bath
4 bedroom detached house for sale in Staithes Drive, Wakefield, West Yorkshire, WF1 — £365,000 • 4 bed • 2 bath • 1362 ft²






























































































































































