Characterful two‑bed home with sweeping countryside views and off‑street parking.
Stunning reservoir and Peak District countryside views
Chain free sale with long 757‑year leasehold
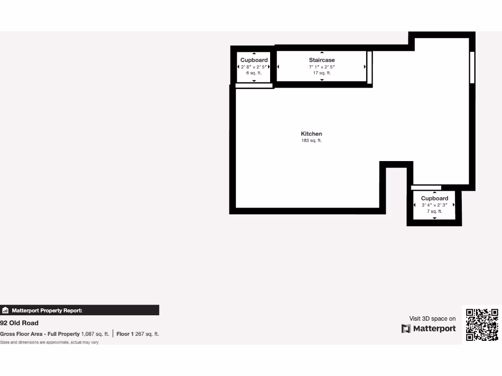
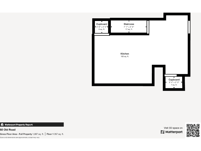
Two reception rooms and large country‑style kitchen
Cobbled off‑street parking and detached stone outhouse
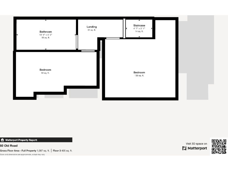
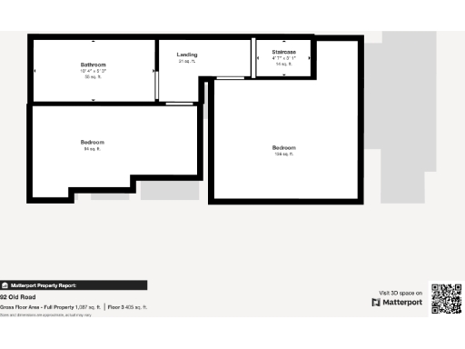
Two double bedrooms; one family bathroom
Double glazing fitted after 2002; mains gas heating
Stone walls assumed uninsulated — may need insulation work
Broadband speeds are slow; rural mobile signal excellent
Set over three floors, this two‑bedroom period cottage sits on Old Road with sweeping reservoir and Peak District views. The house keeps original character — exposed beams, window seats and wood floors — and offers two reception rooms plus a large country‑style kitchen that opens to a lawned rear garden. Cobbled off‑street parking and a detached stone outhouse add practical convenience.
The layout will suit first‑time buyers or couples seeking a rural base with scope to personalise. Heating is mains gas via boiler and radiators; double glazing was installed after 2002. The property is chain free and leasehold with a long 757‑year term.
Buyers should note a few practical points: broadband speeds are slow, the stone walls are assumed uninsulated which could affect heating costs, and there is a single family bathroom. Constructed before 1900, the cottage may need typical period maintenance and sympathetic updating in places.
Overall this is a characterful home in a sought‑after location within the Peak District’s catchment. It combines immediate livability with clear potential for energy efficiency improvements and cosmetic modernisation to increase comfort and value.
2 bedroom terraced house for sale in Old Road, Tintwistle, Glossop, SK13 1JY, SK13 — £280,000 • 2 bed • 1 bath • 1047 ft²
2 bedroom terraced house for sale in Glossop Road, Little Hayfield, High Peak, Derbyshire, SK22 — £190,000 • 2 bed • 1 bath • 538 ft²
3 bedroom detached house for sale in The Stocks, Tintwistle, SK13 — £365,000 • 3 bed • 2 bath • 1398 ft²
2 bedroom terraced house for sale in New Mills Road, Birch Vale, SK22 — £239,950 • 2 bed • 1 bath • 700 ft²
2 bedroom semi-detached house for sale in Stich Lane, Birch Vale SK22 — £244,995 • 2 bed • 1 bath • 516 ft²
3 bedroom terraced house for sale in Hayfield Road, New Mills, High Peak, Derbyshire, SK22 — £250,000 • 3 bed • 1 bath • 1052 ft²










































































