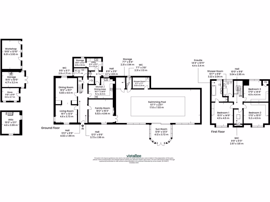
Character-filled 3-bed home with indoor pool and large coach house on mature grounds.
Period Victorian cottage dating from 1850 with original features retained
Willowbank Cottage is a rare Victorian detached residence set in about 0.6 acres of mature, private grounds at the end of Well Road. The house retains many original period features — high ceilings, decorative cornicing and tall sash windows — across generous reception rooms and three double bedrooms. A substantial former coach house, garage and long gravel drive add flexibility and off-street parking.
Stand-out practical assets include a 50' indoor swimming pool with adjoining shower/changing room and a large sunroom off the pool area, plus a contemporary five-piece en suite to the principal bedroom. The overall footprint is very large (approx. 4,150 sq ft with around 21 rooms) and the plot offers scope for gardens, outbuildings or small-scale redevelopment subject to consents.
The property has been owner-cared for over decades and benefits from gas central heating, double glazing and fast broadband. Buyers should note material considerations: this is an older building (circa 1850) in a semi-rural village setting — maintenance and period-upkeep are ongoing responsibilities. Council tax is described as quite expensive, and the immediate wider area is classified with high deprivation metrics, though the local neighbourhood is comfortable.
Offers are invited over £595,000 (home report previously £650,000). This is a substantial, character-rich family home for purchasers seeking space, privacy and period detail with potential to personalise or adapt the outbuildings and pool complex.
4 bedroom detached house for sale in Victoria Road, Brookfield, PA5 — £450,000 • 4 bed • 1 bath • 1819 ft²
4 bedroom semi-detached house for sale in 21 Stevenston Road, Kilwinning, KA13 6LG, KA13 — £300,000 • 4 bed • 2 bath
3 bedroom apartment for sale in Potterhill Avenue, Paisley, Renfrewshire, PA2 — £275,000 • 3 bed • 1 bath • 1383 ft²
4 bedroom detached house for sale in Pacemuir Lane, Kilmacolm, PA13 — £280,000 • 4 bed • 1 bath • 1455 ft²
2 bedroom cottage for sale in Craigton Cottages, Milngavie, G62 — £360,000 • 2 bed • 2 bath • 1012 ft²
4 bedroom detached house for sale in Thomson Place, Hardgate, G81 — £480,000 • 4 bed • 2 bath • 2562 ft²










































































































