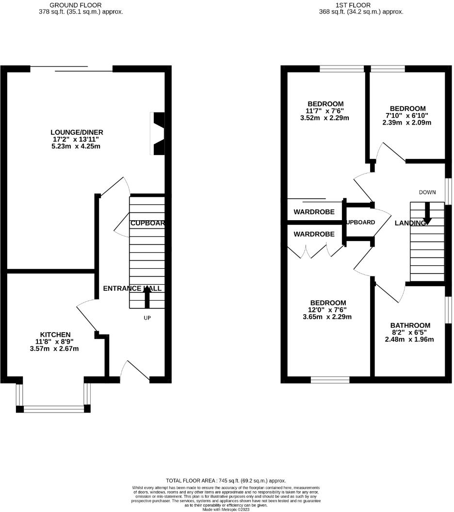
Ideal first purchase with driveway and private garden in tranquil cul-de-sac.
- Three bedrooms in a compact, efficient layout
- Driveway provides off-road parking for two vehicles
- Private, landscaped rear garden with paved patio
- Located in a quiet cul-de-sac in desirable village
- Single family bathroom only; may be limiting for some
- Small overall footprint (about 746 sq ft)
- Double glazing (fitted post-2002) and gas central heating
- Freehold, low crime, no flood risk
Set in a quiet cul-de-sac in Brafield-on-the-Green, this well-presented three-bedroom semi-detached house offers a compact, practical layout ideal for first-time buyers or small families. The ground floor provides an entrance hall, kitchen and a lounge/diner with direct access to a private, landscaped rear garden. Off-street parking for two cars on the paved driveway is a useful convenience in this village location.
Built in the early 1990s with double glazing fitted after 2002 and gas central heating, the home presents tidy external finishes and an efficient footprint of about 746 sq ft. The EPC indication (around 73 current, potential 87) suggests reasonable energy performance for its age. Nearby primary and secondary schools rated Good or Outstanding, local amenities and good broadband and mobile signals add to everyday practicality.
The property does have a small overall plot and a single family bathroom, which may feel tight for growing families. Internal modernisation in places could improve comfort and value — the layout is straightforward, making upgrades relatively simple. Freehold tenure, low crime and no flood risk are reassuring features for a first purchase or rental investment.
This home suits buyers wanting an affordable entry into a prosperous, village setting with good transport links and community amenities. Viewings will suit anyone looking for a move-in capable house with clear scope to personalize and add value over time.
3 bedroom semi-detached house for sale in Bridle Close, Brafield on the Green, Northampton, NN7 — £270,000 • 3 bed • 1 bath • 812 ft²
4 bedroom semi-detached house for sale in Church Lane, Brafield-On-The-Green, Northampton, Northamptonshire, NN7 — £430,000 • 4 bed • 1 bath • 1438 ft²
3 bedroom semi-detached house for sale in Bridle Close, Brafield On The Green, NN7 1AS, NN7 — £270,000 • 3 bed • 1 bath • 812 ft²
3 bedroom semi-detached house for sale in Torrington Crescent, Wellingborough, NN8 — £230,000 • 3 bed • 1 bath • 760 ft²
3 bedroom semi-detached house for sale in Waggoners Way, Bugbrooke, Northampton, NN7 — £274,995 • 3 bed • 1 bath • 1012 ft²
3 bedroom semi-detached house for sale in Franciscan Close, Rushden, NN10 — £220,000 • 3 bed • 1 bath • 784 ft²


















































