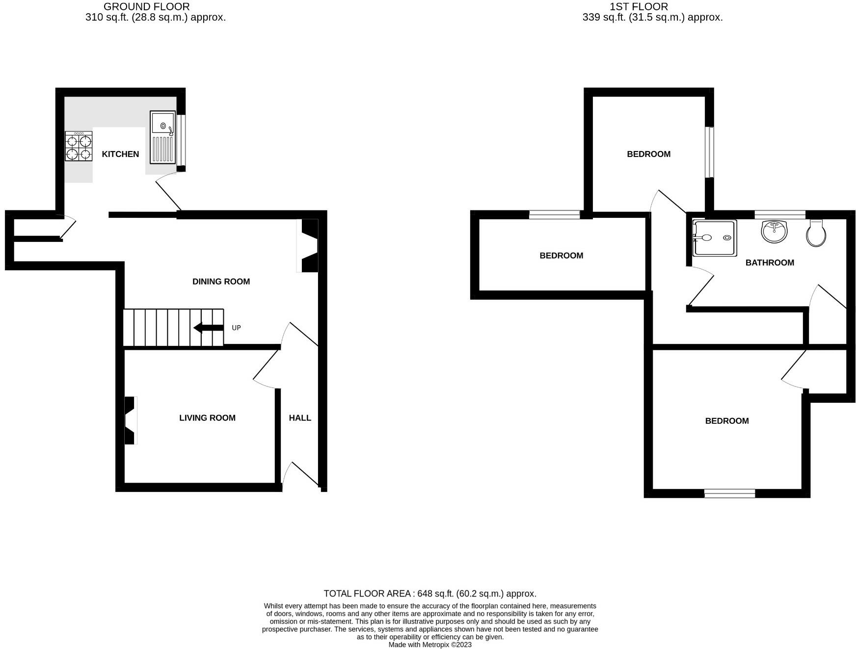
**Standout Features:**
- Three bedrooms
- Mid-terrace Victorian design with charming stone facade
- Short stroll to Helston town center
- Small garden with additional rear garden space and shed
- Needs renovation for full potential
- Affordable council tax band B
**Summary:**
Discover the potential of this quaint three-bedroom mid-terrace house in the heart of Helston, which is ideal for families or first-time buyers seeking a home to make their own. The property boasts traditional Victorian architecture with sash windows, a cozy front garden, and a generously sized rear area complete with a useful shed, perfect for storage or hobbies. Inside, you'll find a practical layout featuring a welcoming lounge with an open fire, a dining room, and a functional kitchen that invites modernization.
The upstairs comprises three bedrooms and a shower room, providing ample space for family living. While the property does require some updating, its prime location—just a short walk from local amenities, schools, and beautiful coastal walks on the Lizard Peninsula—presents an excellent opportunity for long-term investment or personalization. With fast broadband and good transport links, this property is a great buy for those looking to settle in a vibrant community. Don't miss your chance to transform this diamond in the rough into your dream home!
3 bedroom terraced house for sale in Trengrouse Way, Helston, TR13 — £200,000 • 3 bed • 1 bath • 960 ft²
2 bedroom terraced house for sale in Mid terrace home with great potential, Helston, TR13 — £155,000 • 2 bed • 1 bath • 644 ft²
3 bedroom end of terrace house for sale in Three bedroom home with no onward chain, Helston, TR13 — £198,800 • 3 bed • 1 bath • 647 ft²
3 bedroom semi-detached house for sale in Penberthy Road, Helston, TR13 — £230,000 • 3 bed • 1 bath • 1120 ft²
3 bedroom terraced house for sale in Home near town centre, Helston, TR13 — £225,000 • 3 bed • 1 bath • 616 ft²
3 bedroom terraced house for sale in Bulwark Road, Helston, Cornwall, TR13 — £196,000 • 3 bed • 1 bath • 880 ft²


































































