KT12 5PR - 3 bedroom terraced house for sale in Mayfield Close, Walton…

View on Property Piper

3 bedroom terraced house for sale in Mayfield Close, Walton-on-Thames, KT12

Summary - 18 MAYFIELD CLOSE HERSHAM WALTON-ON-THAMES KT12 5PR

3 bed 1 bath Terraced

**Standout Features:**
- Terraced Georgian style home in a desirable cul-de-sac location
- Three spacious bedrooms with built-in wardrobes
- Bright, contemporary kitchen/dining room
- South-facing, low-maintenance rear garden with a patio
- Garage in nearby block for convenient parking
- Just minutes from Walton-on-Thames mainline station
- No onward chain for quick transaction
- Gas central heating and double glazing

**Summary:**
Discover this charming Neo-Georgian terraced property, ideally placed in a tranquil cul-de-sac just minutes from Walton-on-Thames station. With three well-proportioned bedrooms offering ample space and built-in wardrobes, this home is perfect for families. The stylish kitchen/dining room flows seamlessly into a bright living area, creating an inviting atmosphere for both relaxation and entertainment.

Outside, the south-facing garden comes with a neat patio area, perfect for unwinding or hosting a summer barbecue, while the garage in a nearby block offers convenient storage and parking solutions. With no onward chain, this residence presents an excellent opportunity for those looking for a quick and easy move. Whether you're a first-time buyer or seeking a family-friendly community, this property strikes a balance of comfort and potential in a highly sought-after area. Don’t miss your chance to make it your own!

Property Details

Brochure Descriptions

Image Descriptions

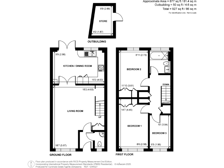
Floorplan Description

Rooms

Textual Property Features

Detected Visual Features

EPC Details

Nearby Schools

Nearest Bars And Restaurants

,,,,}

Nearest General Shops

,,}

Nearest Grocery shops

,,}

Nearest Supermarkets

,,}

Nearest Religious buildings

,,}

Nearest Medical buildings

,,,}

Nearest Airports

,}

Nearest Leisure Facilities

,,,,}

Nearest Tourist attractions

,,}

Nearest Train stations

,,,,}

Nearest Bus stations and stops

,,,,}

Nearest Hotels

,,}

Tags

Local Market Stats

AirBnB Data

Similar Properties

Meta

High Res Images

Compatible Images

Low res Images

Thumbnails

Raw Images

High Res Floorplan Images

Compatible Floorplan Images

Low res Floorplan Images

FloorplanImages Thumbnail

Raw Floorplan Images