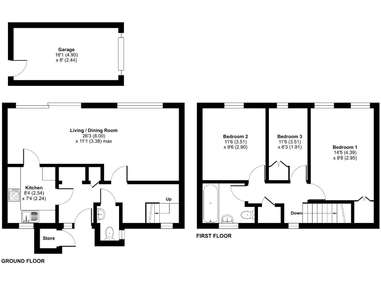
**Standout Features:**
- Three spacious bedrooms, including two doubles
- Refitted family bathroom and modern kitchen
- Generous living/dining area perfect for family gatherings
- Rear driveway and garage for convenient parking
- Tranquil cul-de-sac location
- Close proximity to Frimley Park Hospital and excellent transport links
- Garden with a patio area, ideal for outdoor leisure
**Notable Concerns:**
- Property is in need of modernization, particularly in the kitchen
- Average crime rate in the surrounding area
Discover your next family haven in this charming three-bedroom terraced home nestled in a quiet cul-de-sac in desirable Camberley. Ideal for small families or first-time buyers, this property boasts a spacious living/dining room and a separate kitchen that’s ready for your personal touch. Enjoy the comfort of a refitted bathroom and the benefit of double glazing, while the rear garden and patio area provide a delightful outdoor space for children or pets.
With driveway parking and a garage, convenience is at your doorstep. Its prime location offers easy access to Frimley Park Hospital, local amenities, and fantastic transport links to London, making it a great choice for commuters. While the kitchen is due for an update, the potential for renovations adds value and opportunity for customization. However, be aware of the area’s above-average crime rate. This property won't last long—come and explore the comfortable living and future possibilities that await!
3 bedroom terraced house for sale in Hartford Rise, Camberley, Surrey, GU15 — £375,000 • 3 bed • 1 bath • 748 ft²
3 bedroom end of terrace house for sale in Hartford Rise, Camberley, Surrey, GU15 — £375,000 • 3 bed • 1 bath • 725 ft²
3 bedroom terraced house for sale in The Grove, Frimley, Camberley, Surrey, GU16 — £375,000 • 3 bed • 1 bath • 636 ft²
3 bedroom semi-detached house for sale in Mountbatten Mews, Camberley, Surrey, GU15 — £450,000 • 3 bed • 2 bath • 670 ft²
3 bedroom semi-detached house for sale in Copelands Close, Camberley, Surrey, GU15 — £420,000 • 3 bed • 2 bath • 985 ft²
3 bedroom semi-detached house for sale in Camberley, Surrey, GU15 — £500,000 • 3 bed • 1 bath • 1220 ft²






















































