**Standout Features:**
- First-floor apartment with dual aspect lounge
- Fitted kitchen with integrated appliances
- Wet room with both bath and shower facilities
- Open-plan layout with defined space for lounge and dining
- Gated development with on-site parking and amenities (restaurant, laundry room)
- Lift access to all floors, ideal for retirees
- Well-maintained communal gardens and lounge
**Concerns:**
- Above-average crime rate in the area
- Leasehold tenure details may require attention
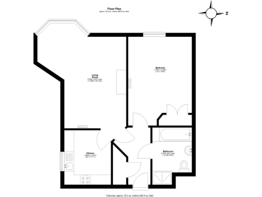
Discover this inviting one-bedroom apartment designed exclusively for the over-65s, offering comfort and security within a sought-after gated development in GU11. Enjoy the spacious dual aspect lounge illuminated by ample natural light, leading to a fitted kitchen equipped with modern integrated appliances. The property boasts a contemporary wet room that combines both bath and shower, catering to your versatile needs.
This residence not only offers immediate access to well-kept communal gardens and lounges but also thoughtfully planned amenities, including on-site dining and laundry options. With a lift accessible to all floors, it ensures utmost ease for you or your loved ones. Positioned within proximity to local shops and train stations, this property represents a perfect blend of convenience and community for those seeking a peaceful retirement lifestyle. Although the local crime rate is above average, the gated environment provides an added layer of security. Don’t miss the chance to secure this gem – a rare opportunity that won't last long!
2 bedroom apartment for sale in Windsor Way, Aldershot, Hampshire, GU11 — £12,500 • 2 bed • 1 bath • 740 ft²
1 bedroom apartment for sale in Oakleigh Square, Hammond Way, Yateley, GU46 — £210,000 • 1 bed • 1 bath • 304 ft²
1 bedroom apartment for sale in St. Benedicts Close, Aldershot, Hampshire, GU11 — £75,000 • 1 bed • 1 bath • 358 ft²
1 bedroom retirement property for sale in Church Road East, Farnborough, GU14 — £95,000 • 1 bed • 1 bath • 439 ft²
1 bedroom apartment for sale in Windsor Way, Aldershot, Hampshire, GU11 — £15,000 • 1 bed • 1 bath • 572 ft²
1 bedroom retirement property for sale in Windsor Way, Aldershot, GU11 — £20,000 • 1 bed • 1 bath • 558 ft²






























































