**Standout Features:**
- **Expansive Plot:** Approaching half an acre with beautifully landscaped gardens.
- **Scenic Views:** Uninterrupted field views, ideal for relaxation and outdoor entertaining.
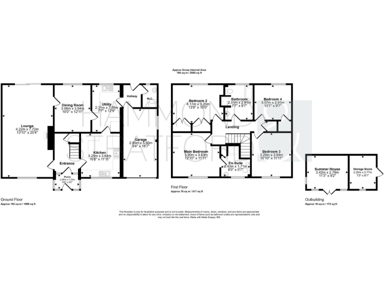
- **Spacious Living:** 4 large double bedrooms, including en-suite for the main bedroom.
- **Impressive Kitchen:** Features integrated appliances and ample storage, plus a separate utility room.
- **Gated Driveway:** Provides parking for multiple vehicles and includes a garage.
- **Outdoor Delight:** Landscaped garden with patio, pergola, summer house, and greenhouse.
**Notable Points:**
- **Quiet Location:** Set in a peaceful village (East Tuddenham) with a strong community atmosphere.
- **Commuter Access:** Easy access to A47, with nearby towns such as Dereham and Norwich.
- **Family-Friendly:** Close to schools with Good Ofsted ratings and local amenities.
- **Potential Maintenance:** Keep in mind that oil heating may require periodic servicing.
Discover an extraordinary family home set within nearly half an acre of beautifully landscaped gardens, where countryside tranquility meets practical living. This detached residence in East Tuddenham radiates charm, boasting generous room sizes including four double bedrooms and an en-suite to the main—a perfect haven for family life. The impressive kitchen, with integrated appliances, opens to a spacious dual-aspect lounge featuring a cozy fireplace, making it a delightful space for gatherings.
Step outside to find your personal oasis, where mature planting, a patio, and a charming pergola invite you to unwind or entertain amid the stunning backdrop of uninterrupted field views. Adjacent to the garden, a versatile summer house adds to the charm, creating a perfect retreat or hobby space. With parking for multiple vehicles and a garage, this home offers convenience and potential for customization.
Nestled in a quiet village, this property promises a peaceful lifestyle while still being within reach of nearby towns and excellent schools. Ideal for families or anyone seeking to embrace the charm of rural living—properties of this caliber do not linger on the market. Don't miss your chance to make this stunning home your own!
4 bedroom detached house for sale in North Tuddenham, Dereham, NR20 — £425,000 • 4 bed • 2 bath • 1921 ft²
4 bedroom detached bungalow for sale in Pound Lane, North Tuddenham, NR20 — £535,000 • 4 bed • 2 bath • 1669 ft²
3 bedroom detached bungalow for sale in Barrack Close, East Tuddenham, NR20 — £425,000 • 3 bed • 2 bath • 859 ft²
4 bedroom detached house for sale in Mattishall Road, East Tuddenham, Dereham, NR20 — £425,000 • 4 bed • 1 bath • 1127 ft²
4 bedroom detached house for sale in Leonard Medler Way, Hevingham, Norwich, NR10 — £575,000 • 4 bed • 2 bath • 1838 ft²
5 bedroom detached house for sale in Claxton Mill, Claxton, Norwich, NR14 — £700,000 • 5 bed • 3 bath • 2500 ft²






















































































