Affordable family starter with garden and parking, ready for improvement.
Three bedrooms and two bathrooms, approximately 1,093 sq ft
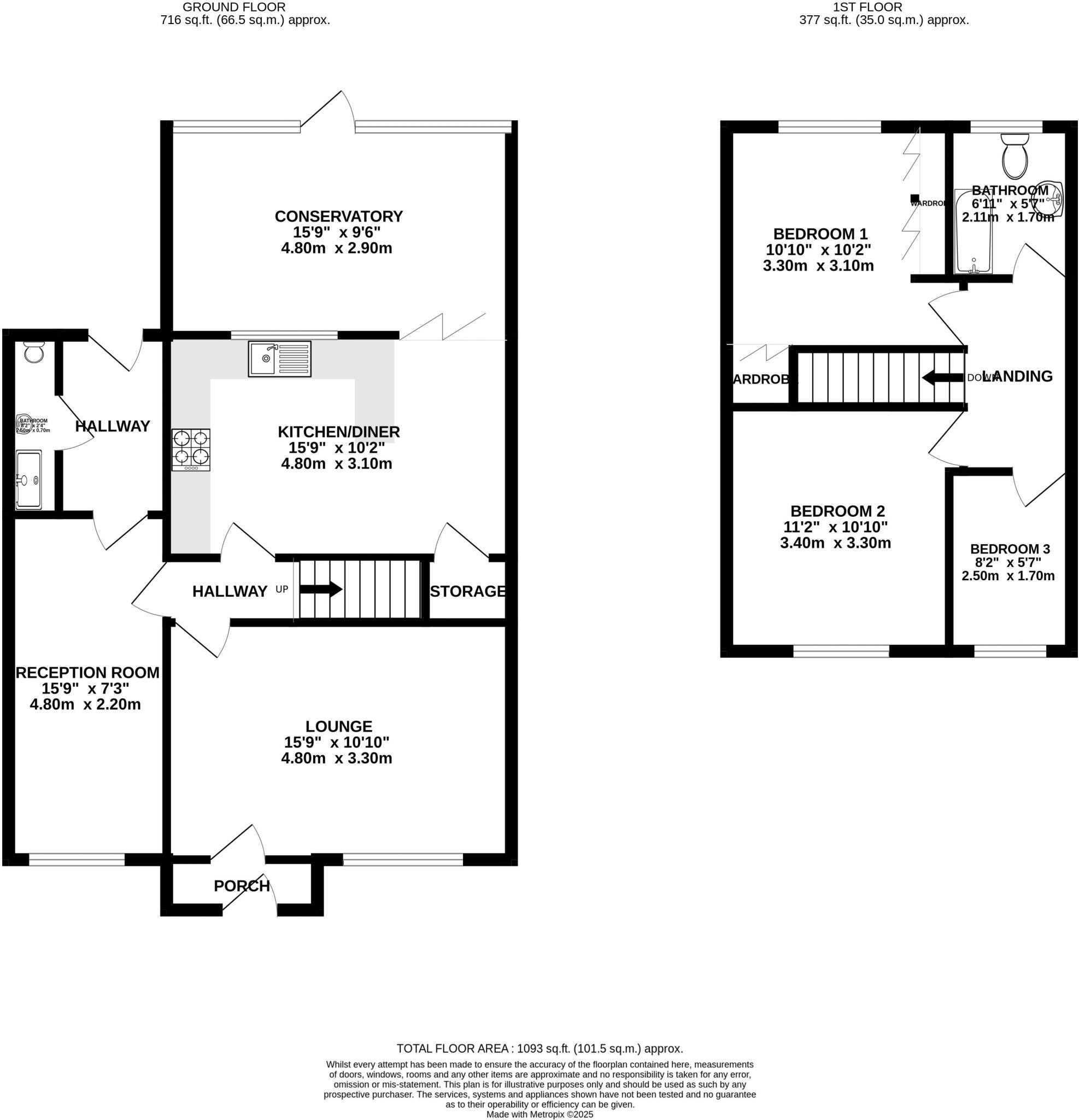
A three-bedroom, two-bathroom semi-detached home on Greystones Road offering practical family living and clear scope to add value. The ground floor includes a front lounge, kitchen/diner, conservatory and a reception room that was formerly a garage. Upstairs are two double bedrooms, a single bedroom and a family bathroom. EPC rating C and mains gas central heating provide reasonable running costs.
The rear garden is enclosed and mainly lawn, with off-road parking for a couple of vehicles to the front. The driveway is currently overgrown and the property shows signs of dated finishes — sensible maintenance and updating will improve comfort and resale potential. The layout and size (approximately 1,093 sq ft) suit a first-time buyer or growing family seeking a straightforward home to personalise.
Local amenities are well served: good-rated primary and secondary schools are within reach, plus healthcare, leisure and public transport links. Crime levels are above average and the immediate area is classed as very deprived; buyers should factor local neighbourhood conditions into their decision. Freehold tenure and very low flood risk are positive practical features.
This house suits buyers looking for an affordable entry into homeownership who are comfortable carrying cosmetic work and basic maintenance. For an investor or DIY-minded owner-occupier, the property offers clear potential to increase value with targeted improvements.
2 bedroom end of terrace house for sale in Swale Drive, Gainsborough, DN21 — £135,000 • 2 bed • 1 bath • 668 ft²
3 bedroom detached house for sale in Grey Street , Gainsborough, DN21 — £154,950 • 3 bed • 1 bath • 691 ft²
3 bedroom house for sale in Arundel Close, Gainsborough, DN21 — £190,000 • 3 bed • 1 bath • 732 ft²
3 bedroom detached house for sale in Ravendale Road, Gainsborough, DN21 — £215,000 • 3 bed • 1 bath • 905 ft²
2 bedroom end of terrace house for sale in Hickman Court, Gainsborough, Lincolnshire, DN21 — £130,000 • 2 bed • 1 bath • 607 ft²
3 bedroom semi-detached house for sale in Gainsborough Road, Lea, DN21 — £270,000 • 3 bed • 1 bath • 1217 ft²






















































































