Spacious Grade II retirement apartment with private balcony and seven acres of grounds.
Grade II listed Georgian mansion, built 1834
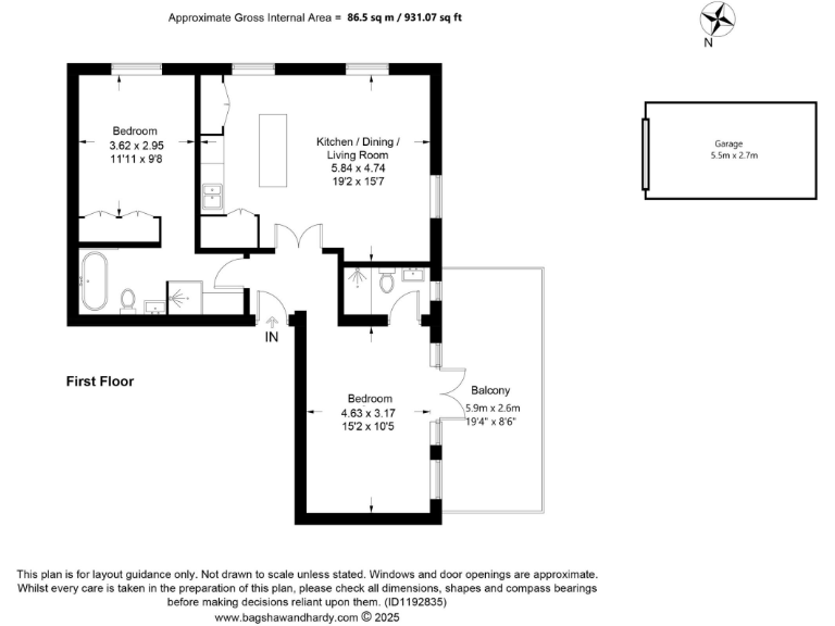
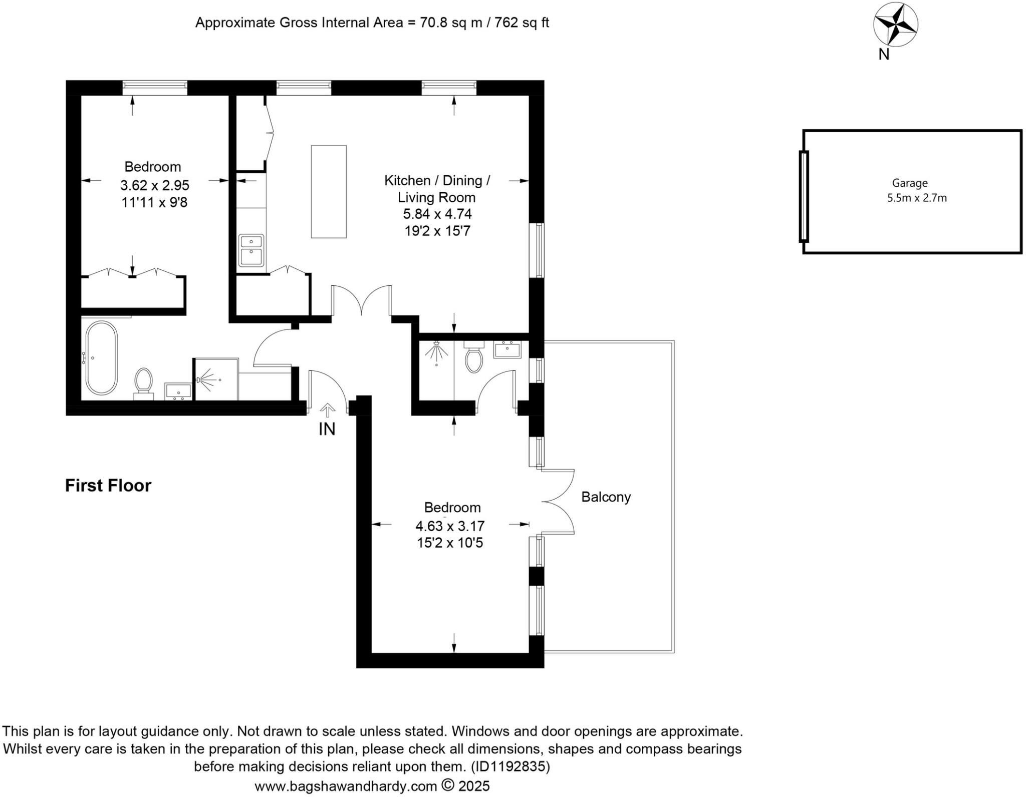
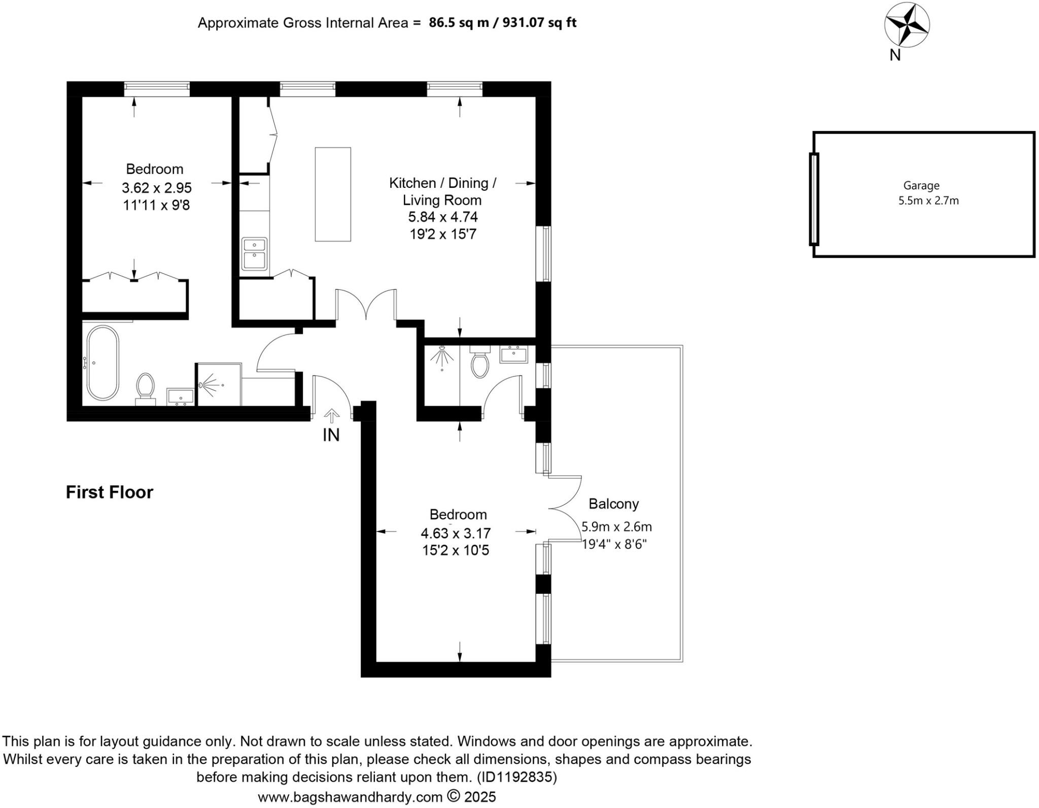
Set within seven acres of private grounds, this spacious two-bedroom apartment occupies a distinguished Grade II Georgian mansion and is offered chain free. High ceilings, original cornices and large sash windows flood the rooms with light and deliver far-reaching countryside views. The principal bedroom enjoys the sole private balcony in the block, creating a rare outdoor retreat for this type of property. The kitchen is fitted with quality Gaggenau appliances, marble surfaces and a Quooker tap, making daily life and entertaining straightforward.
This home is well suited to downsizers or retirees seeking a tranquil village setting with good local amenities and fast broadband. Parking is generous with residents/guest spaces plus a single garage in an adjacent block. The grounds include an orchard and extensive lawns ideal for gentle walks and private outdoor events.
Buyers should note the building’s Grade II listing and solid-brick construction. Listing status will restrict alterations and may complicate maintenance; the original walls mean little inherent insulation and potential retrofit work could be needed. The property is held as a share of freehold and remains pet friendly, but prospective purchasers should review communal management arrangements and any historic building requirements before committing.
Overall this apartment combines period character, generous rooms and a unique private balcony within a peaceful estate setting — attractive for those wanting a low-traffic village lifestyle within easy reach of Oxted rail links.
3 bedroom apartment for sale in Southlands House, Tandridge, Oxted, Surrey, RH8 — £550,000 • 3 bed • 2 bath • 1100 ft²
2 bedroom flat for sale in Southlands Lane, Tandridge, RH8 — £350,000 • 2 bed • 2 bath • 815 ft²
1 bedroom apartment for sale in Southlands Lane, Oxted, RH8 9PH, RH8 — £300,000 • 1 bed • 1 bath • 629 ft²
4 bedroom maisonette for sale in Southlands Lane, Tandridge, Oxted, RH8 — £570,000 • 4 bed • 2 bath • 1557 ft²
3 bedroom apartment for sale in Neb Lane, Oxted, Surrey, RH8 — £975,000 • 3 bed • 2 bath • 2039 ft²
2 bedroom flat for sale in Redwood House, Pilgrims Way, Westerham, Kent, TN16 — £725,000 • 2 bed • 2 bath • 1376 ft²














































































































































