Chain-free family home with garage, driveway and scope to extend.
Chain free four-bedroom semi-detached home
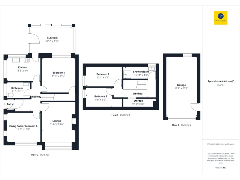
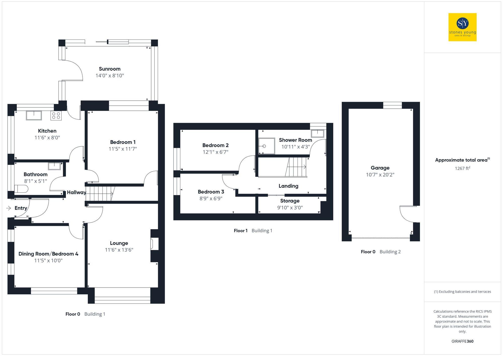
A versatile four-bedroom semi-detached home in Sunny Bower Close offered chain free and ready for improvement. The ground floor provides flexible living with a lounge, kitchen, conservatory and a downstairs bedroom plus an extra room that works well as a dining room or fourth bedroom. Upstairs there are two further bedrooms and a bathroom, giving practical family accommodation and scope to reconfigure.
Key practical strengths include a single detached garage, driveway parking for two cars, gas central heating with a combi boiler, mains gas supply (not on a water meter) and double glazing. The conservatory and loft space present clear potential for extension or conversion (dormers) to add living area and value, subject to necessary consents.
Buyers should note the property is from the late 1960s/early 1970s and is small in overall size (circa 915 sq ft). The EPC is E and many internal areas show dated finishes — cosmetic refurbishment or more extensive updating will be needed to modernise heating, insulation and decor. The local area scores as relatively deprived and crime is average; school options include nearby state and independent providers.
This home suits a growing family or an investor looking for a value-add project in a city setting. With sensible investment the property could increase in footprint and market value, particularly if the conservatory is remodelled or loft space converted.
3 bedroom semi-detached house for sale in Cunliffe Close, Blackburn, BB1 — £170,000 • 3 bed • 1 bath • 834 ft²
3 bedroom semi-detached house for sale in Sunnybower Road, Blackburn, BB1 — £165,000 • 3 bed • 1 bath • 775 ft²
3 bedroom semi-detached house for sale in Warrenside Close, Blackburn, Lancashire, BB1 — £250,000 • 3 bed • 1 bath • 1276 ft²
3 bedroom bungalow for sale in Sunny Bower Close, Sunnybower, Blackburn, Lancashire, BB1 — £200,000 • 3 bed • 1 bath • 2203 ft²
2 bedroom semi-detached bungalow for sale in Sunnybower Road, Blackburn, BB1 — £180,000 • 2 bed • 1 bath • 979 ft²
3 bedroom semi-detached house for sale in Heys Court, Blackburn, BB2 — £170,000 • 3 bed • 2 bath • 919 ft²






























































