Chain-free period home with clear refurbishment potential and strong transport links.
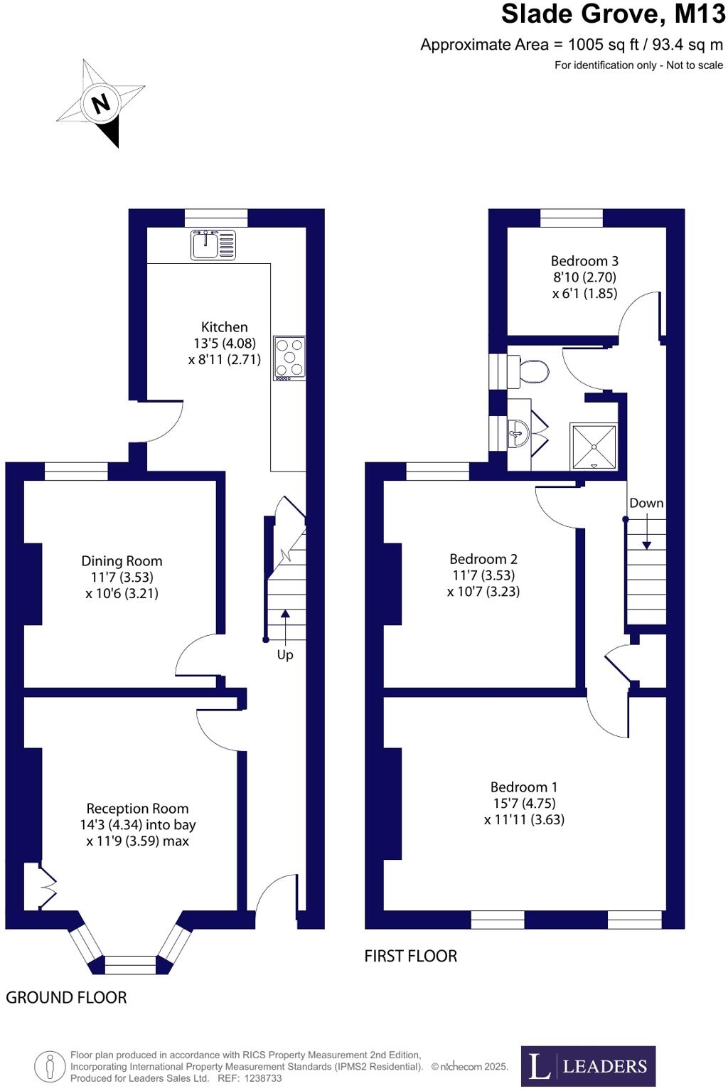
Three bedrooms, one shower room, two reception rooms
A traditional three-bedroom Victorian terrace with clear upside for refurbishment buyers and landlords. The property is freehold, chain-free and offered 'sold as seen', presenting a straightforward acquisition for someone willing to invest in renovation and modernisation.
Inside are two reception rooms (front bay window), a basic kitchen, and a first-floor shower room. The living room shows damp stains and peeling wallpaper; the building has solid brick walls with no known insulation. Heating is mains gas boiler and radiators; glazing is double but install date is unknown.
Practical positives include enclosed rear courtyard, good mobile signal and fast broadband, and strong local amenities and transport links. There is an existing offer of £220,000; any higher offers must be submitted in writing before exchange. Buyers should note the property needs renovation, is in a very deprived area, and is sold as seen — suitable for investors or DIY buyers seeking value-add potential.
3 bedroom end of terrace house for sale in Rosebery Street, Manchester, Greater Manchester, M14 — £230,000 • 3 bed • 2 bath • 1044 ft²
3 bedroom end of terrace house for sale in Longford Place, Manchester, M14 — £260,000 • 3 bed • 1 bath • 2061 ft²
2 bedroom terraced house for sale in Hyde Road, Manchester, M12 — £130,000 • 2 bed • 1 bath • 743 ft²
2 bedroom terraced house for sale in Boscombe Street, Manchester, Greater Manchester, M14 — £220,000 • 2 bed • 1 bath • 760 ft²
2 bedroom terraced house for sale in Methuen Street, Longsight, M12 — £155,000 • 2 bed • 1 bath • 734 ft²
3 bedroom terraced house for sale in Baywood Street, Harpurhey, Manchester, M9 — £185,000 • 3 bed • 1 bath • 1009 ft²


















































