Three double bedrooms with principal en-suite
Set on the popular Grange Park development, this well-presented three double bedroom detached home offers comfortable family living and easy commuting. Built by Jelson Homes from 2012 onward, the property benefits from modern construction, double glazing and efficient gas central heating.
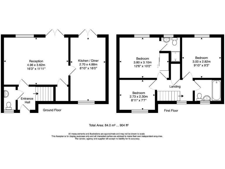
The ground floor is arranged for family use and entertaining: an entrance hall with cloakroom, a bright sitting room with direct garden access, and a front-to-back kitchen/diner with French doors onto the patio. Upstairs, the principal bedroom includes fitted storage and an en-suite shower room, while two further double bedrooms and a stylish family bathroom complete the accommodation.
Outside there is an extended driveway for multiple vehicles and a detached garage, plus a private rear garden with lawn and an extended patio — a peaceful, low-maintenance outdoor space. Local facilities, good primary and secondary schools and countryside walks are all within easy reach, making the location especially suitable for families and professionals.
Practical considerations: the house is a modern, average-sized home at around 904 sq ft, with moderate council tax. The detached garage sits separately from the house and the plot is typical of a modern estate layout rather than a large period plot. Overall, the property offers a straightforward, low-risk purchase for those seeking a ready-to-live-in family home in a very low-crime, well-connected suburb.



























































































