Spacious family home near outstanding schools and village amenities.
Chain-free three-storey detached family home
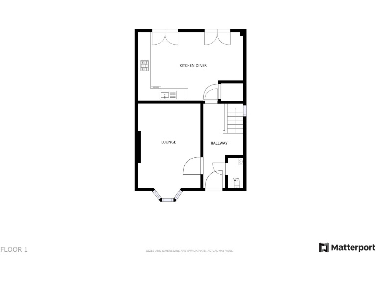
A chain-free, three-storey detached family home arranged over well-planned living space, ideal for growing families. The ground floor offers an entrance hall with WC, a comfortable lounge and a kitchen-diner that opens to a low-maintenance rear garden. Two bedrooms have en-suite facilities, providing flexibility for parents and older children or guests.
Built post-2007 with double glazing and gas central heating, the house sits on a decent plot with off-road parking and a garage. Local schooling is strong, including an Outstanding primary and good secondary options, and village amenities are within easy reach. Market Harborough and Leicester are accessible for commuting and wider services.
Buyers should note practical limitations: broadband speeds are reported slow, and the property’s council tax is above average. Some internal areas show signs of wear and may benefit from cosmetic updating to suit modern tastes. Overall this property offers convenient family living, sensible space, and good future potential in a prosperous village setting.
4 bedroom detached house for sale in Brookfield Way, Kibworth, LE8 — £485,000 • 4 bed • 3 bath • 1933 ft²
4 bedroom semi-detached house for sale in Millday Close, Kibworth Harcourt, LE8 — £335,000 • 4 bed • 3 bath • 1125 ft²
4 bedroom link detached house for sale in The Lea, Kibworth Beauchamp, Leicester, LE8 — £555,000 • 4 bed • 3 bath • 2500 ft²
3 bedroom end of terrace house for sale in Folley Road, Kibworth Beauchamp, LE8 — £310,000 • 3 bed • 2 bath • 1098 ft²
3 bedroom terraced house for sale in Polwell Road, Kibworth Harcourt, LE8 — £290,000 • 3 bed • 2 bath • 1141 ft²
4 bedroom terraced house for sale in Glebeland, Kibworth Harcourt, Leicester, LE8 — £340,000 • 4 bed • 2 bath • 1443 ft²


























































































































