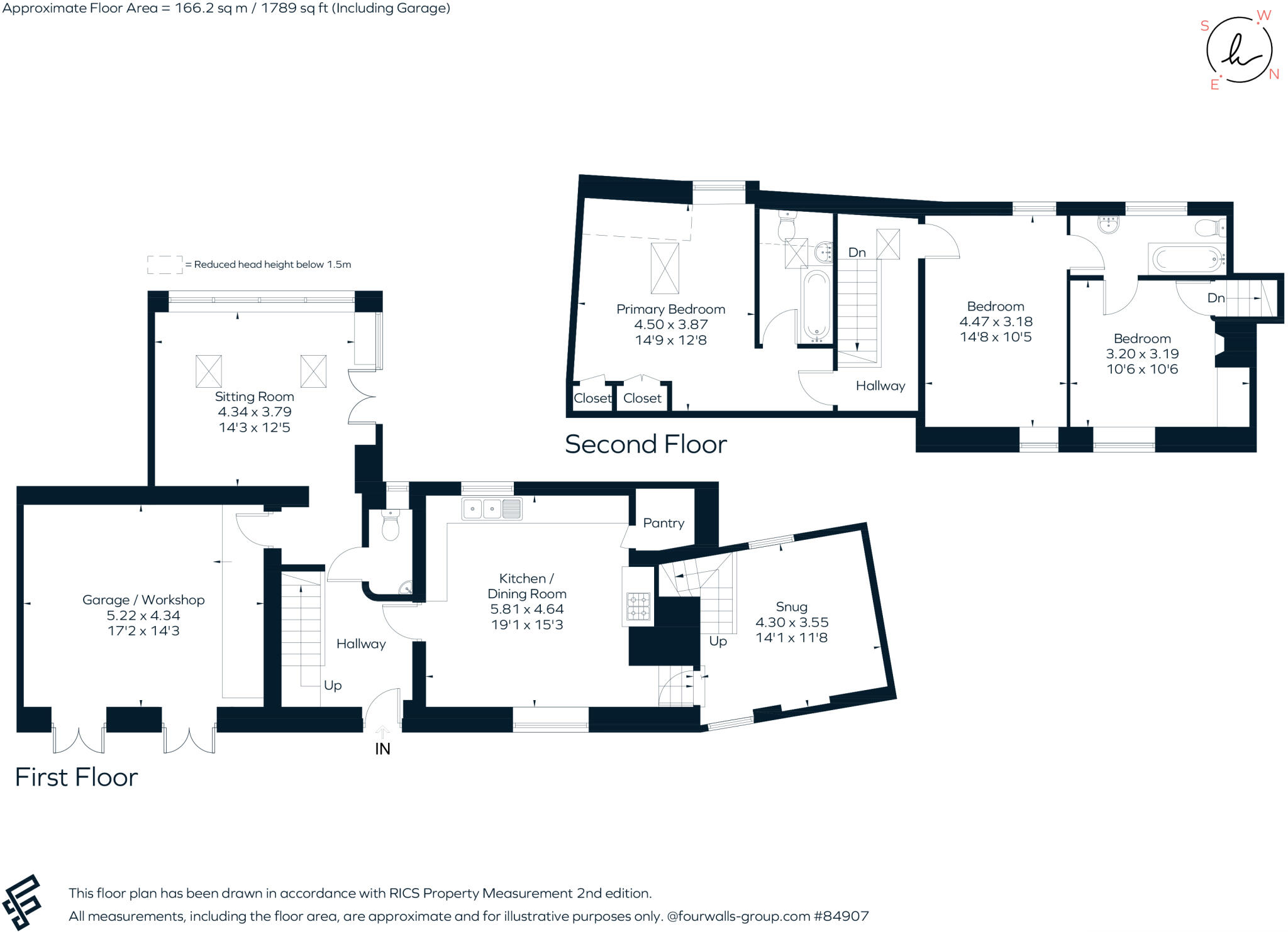
**Standout Features:**
- Charming Grade II listed cottage dating from 1700
- Two spacious sitting rooms and an open plan kitchen/dining area
- Three double bedrooms, including a main bedroom with en-suite
- West-facing garden with woodland views, ideal for entertaining
- Off-street parking and a double garage/workshop
- Quiet, affluent village location with strong community amenities
**Notable Concerns:**
- Listed status may complicate renovation efforts
- Ground maintenance required for the garden
Discover a unique period cottage in the picturesque village of Adderbury, Oxfordshire. This Grade II listed home, steeped in history and original character, features charming flagstone floors and exposed beams, creating a warm, inviting atmosphere. The versatile layout includes two cozy sitting rooms, perfect for family gatherings, and a rustic open plan kitchen/dining area flooded with natural light. Upstairs, appreciate the generous three double bedrooms, with the main boasting an en-suite and stunning views of your west-facing garden.
Outside, the enclosed garden provides a serene retreat with ample space for outdoor dining, framed by lovely views of private woodland. With off-street parking for two vehicles and a double garage that doubles as a workshop, this property offers both practicality and potential. Although the listed status may pose renovation challenges, the tranquility, low crime rate, and vibrant local amenities make it an excellent opportunity for those seeking an idyllic countryside lifestyle. Don’t miss out on this exceptional property—schedule your viewing today!
3 bedroom cottage for sale in High Street, Adderbury - NO ONWARD CHAIN, OX17 — £415,000 • 3 bed • 1 bath • 1155 ft²
4 bedroom terraced house for sale in Oxford Road, Adderbury, Banbury, Oxfordshire, OX17 — £450,000 • 4 bed • 2 bath • 1390 ft²
3 bedroom detached house for sale in Horn Hill Road, Adderbury, Oxfordshire, OX17 — £675,000 • 3 bed • 2 bath • 1625 ft²
4 bedroom village house for sale in High Street, Adderbury, Banbury, Oxfordshire, OX17 — £650,000 • 4 bed • 1 bath • 2016 ft²
2 bedroom detached house for sale in Church Lane, Adderbury, Banbury, OX17 — £750,000 • 2 bed • 2 bath • 1682 ft²
4 bedroom end of terrace house for sale in East End Lane, Adderbury, OX17 — £600,000 • 4 bed • 2 bath • 1978 ft²






























































