B90 3HX - 4 bedroom semidetached house for sale in Welford Road, Shir…

View on Property Piper

4 bedroom semi-detached house for sale in Welford Road, Shirley, B90

Summary - Welford Road, Shirley B90 3HX

4 bed 1 bath Semi-Detached

Spacious four-bedroom family home with large wrap-around garden and modern extension.
Extended modern kitchen/diner with vaulted ceiling and underfloor heating
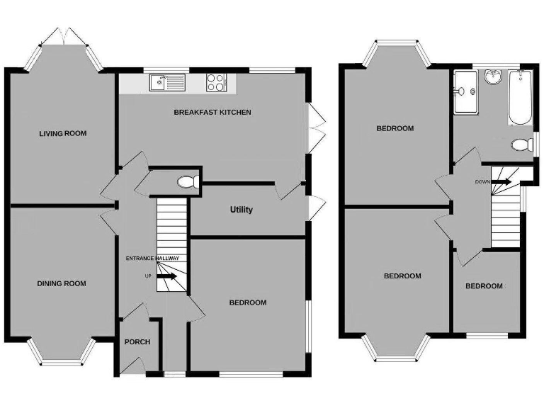
Four bedrooms including ground-floor bedroom/home office
Two spacious reception rooms with bay windows
Large wrap-around garden with patios and mature planting
Block-paved driveway providing off-street parking
Re-fitted four-piece family bathroom plus ground-floor guest WC
Built 1930s with solid brick walls; insulation likely absent
Council Tax band D; possible higher running costs
A spacious, well-presented four-bedroom semi-detached home on a generous corner plot in Shirley. The property combines period charm with a contemporary extended kitchen/diner, two reception rooms and a useful ground-floor bedroom or home office. Large windows and a vaulted ceiling in the kitchen provide excellent natural light and a feeling of space.

The house has practical family features: an impressive re-fitted four-piece bathroom, guest W.C., utility room and underfloor heating in the kitchen. Wrap-around lawns, paved patios and mature planting create a private outdoor space for children and entertaining, plus a block-paved driveway for off-street parking.

Buyers should note the property dates from the 1930s and has solid brick walls (insulation assumed absent) which may affect running costs compared with modern builds. There is one main family bathroom plus a ground-floor WC; larger families may find this limiting without further alteration. Council Tax band D applies.

Overall this is a comfortable, flexible family home in a popular, well-served suburb. It suits buyers seeking ready-to-live-in accommodation with scope to add value through energy-efficiency upgrades or minor reconfiguration to suit growing family needs.

Property Details

Brochure Descriptions

Image Descriptions

Floorplan Description

Rooms

Textual Property Features

Target Audience

AI Tags

Detected Visual Features

EPC Details

Nearby Schools

Nearest Bars And Restaurants

,,,,}

Nearest General Shops

,,}

Nearest Grocery shops

,,}

Nearest Supermarkets

,,}

Nearest Religious buildings

,,}

Nearest Medical buildings

,,,}

Nearest Airports

}

Nearest Leisure Facilities

,,,,}

Nearest Tourist attractions

,,}

Nearest Train stations

,,,,}

Nearest Bus stations and stops

,,,,}

Nearest Hotels

,,}

Tags

Local Market Stats

AirBnB Data

Similar Properties

Meta

High Res Images

Compatible Images

Low res Images

Thumbnails

Raw Images

High Res Floorplan Images

Compatible Floorplan Images

Low res Floorplan Images

FloorplanImages Thumbnail

Raw Floorplan Images