Well-presented two-bedroom semi with study, garage and landscaped garden in desirable Tiptree location..
Two double bedrooms with contemporary family bathroom upstairs
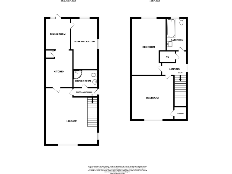
A well-presented two-bedroom semi-detached home on Globe Walk, offering comfortable family living and practical workspace. The ground floor includes a lounge, separate dining area, modern kitchen and a handy study, plus a convenient shower room ideal for guests or quick use.
Upstairs are two double bedrooms and a contemporary family bathroom. The property benefits from a driveway, single garage and a landscaped rear garden with patio — an easy-to-maintain outdoor space well suited to entertaining or relaxed evenings.
Set in a quiet, affluent neighbourhood on the edge of town, the home sits on a modest plot and provides an average overall footprint (approximately 760 sq ft). Mobile signal is excellent; broadband speeds are average. Tenure is freehold and council tax is low, adding to everyday affordability.
This house will suit buyers seeking a move-in-ready suburban home with a dedicated study for remote working, good local schools and straightforward parking. Note the layout offers two bedrooms only and the plot is relatively small — ideal for downsizers or small families but limiting for those needing extensive outdoor space or additional bedrooms.
3 bedroom semi-detached house for sale in Ager Avenue, Tiptree, Colchester, CO5 — £400,000 • 3 bed • 2 bath • 1066 ft²
2 bedroom semi-detached house for sale in Gavin Way, Colchester, CO4 — £300,000 • 2 bed • 1 bath • 762 ft²
3 bedroom semi-detached house for sale in Gosbecks View, Colchester, CO2 — £300,000 • 3 bed • 1 bath
2 bedroom semi-detached house for sale in Tolleshunt d'Arcy Road, Tolleshunt Major, CM9 — £310,000 • 2 bed • 1 bath • 784 ft²
2 bedroom link detached house for sale in Aldeburgh Gardens, Highwoods, Colchester, CO4 — £285,000 • 2 bed • 1 bath • 700 ft²
2 bedroom semi-detached house for sale in Kingsland Road, West Mersea, CO5 — £300,000 • 2 bed • 1 bath • 576 ft²














































































































