High-spec three-bed home with landscaped garden and generous parking.
Newly renovated throughout with contemporary kitchen and bathrooms
Chain-free freehold; immediate vacant possession possible
Dormer layout — two double bedrooms on first floor (stairs required)
Compact overall size (~743 sq ft); efficient but limited footprint
Ex-local authority / PRC note — check lender acceptance and certificates
Landscaped rear garden with patio, decking and maintainable lawn
Generous off-street parking and gated side access to rear garden
Mechanical ventilation and app-monitored alarm system fitted
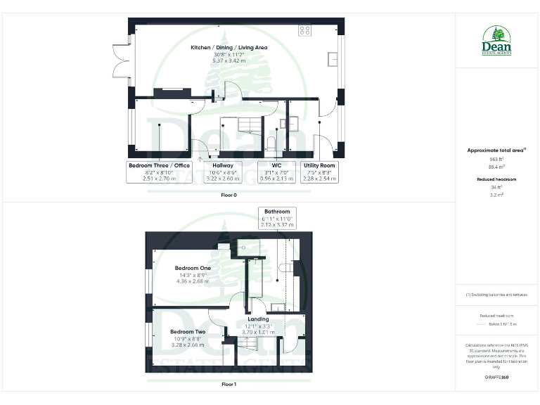
This recently renovated three-bedroom semi-detached bungalow on a quiet cul-de-sac in Lydney offers a high-spec, light-filled interior and landscaped gardens. The principal living space is open-plan with a contemporary fitted kitchen and patio doors to a patio and decking — ideal for low-maintenance outdoor entertaining. Mechanical ventilation and a monitored alarm system are fitted for improved air quality and security. The property is freehold, chain-free and includes generous off-street parking and a decent plot size.
The layout is a dormer-style bungalow with two substantial double bedrooms on the first floor reached by stairs, and a versatile ground-floor bedroom or office. At about 743 sq ft overall the home is compact and efficient; it will suit downsizers or small families who value modern finishes, easy parking and proximity to local shops and woodland walks. The landscaped rear garden has patio, decking with lights, and a maintainable turf area.
Buyers should note the property’s ex-local authority history and the reference to PRC/repair certificates in the documentation; anyone requiring specific mortgage advice or lender confirmation should check eligibility before committing. The home is newly renovated and well-presented but remains modest in size and includes stairs to the first-floor bedrooms, which may not suit those needing single-level access. An optional appliance package is available at an extra cost.
Overall this is a tidy, move-in-ready home in a very low-crime, affluent area with strong broadband and mobile signal. It represents a practical choice for those seeking a recently updated property with convenient town-centre access, good parking and low-maintenance outdoor space.
3 bedroom semi-detached house for sale in Berkeley Crescent, Lydney, GL15 — £310,000 • 3 bed • 1 bath • 667 ft²
2 bedroom semi-detached bungalow for sale in Lakeside Avenue, Lydney, GL15 — £250,000 • 2 bed • 1 bath • 697 ft²
2 bedroom detached house for sale in Lakeside Avenue, Lydney, GL15 — £235,000 • 2 bed • 1 bath • 593 ft²
2 bedroom detached bungalow for sale in High Delf Way, Whitecroft, Lydney, GL15 — £280,000 • 2 bed • 1 bath • 610 ft²
3 bedroom semi-detached bungalow for sale in Lancaster Drive, Lydney, GL15 — £300,000 • 3 bed • 2 bath • 1253 ft²
3 bedroom semi-detached bungalow for sale in Kimberley Close, Lydney, GL15 — £300,000 • 3 bed • 1 bath • 1147 ft²


























































































