Large plot, sea views and annex potential within walking distance of Milford on Sea beach..
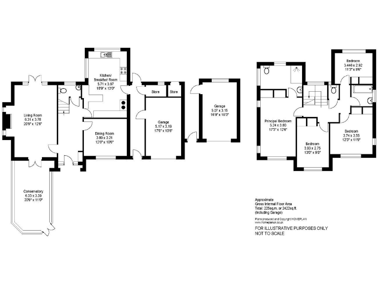
- Four bedrooms plus attic room and two bathrooms
- Sea views to the front above the hedgerow
- Very large double plot with private gardens and outbuildings
- Two garages, double-gated access and ample off-road parking
- Scope to create substantial annexe within grounds (STPP)
- EPC D (current 58), potential 74 — partial insulation
- Council Tax Band G — relatively expensive to run
- No onward chain; constructed c.1976–82, may need modernising
Set on a very large double plot within walking distance of Milford on Sea's beaches and village centre, this spacious four-bedroom detached home delivers generous living space, sea views to the front and two garages. Character features include an open fireplace, farmhouse-style kitchen with gas Aga and a large conservatory that links indoor and outdoor living. The private rear garden, outbuildings, greenhouse and vegetable area will particularly appeal to buyers who value outdoor space and self-sufficiency.
The property offers clear scope to create a substantial annexe or separate dwelling within the grounds (subject to planning permission). Interiors are bright and well laid-out with a principal bedroom and modern en suite, three further bedrooms, an attic room with built-in eaves cupboards and practical family bathroom accommodation. Parking is straightforward with two driveways and double-gated access.
Important points to note: the house dates from c.1976–82 with partial cavity-wall insulation assumed, and has an EPC rating of D (current 58, potential 74). Council tax is at the higher band (G) and some updating or improvement works could be needed to modernise heating efficiency and internal finishes. Planning would be required for any annexe conversion.
This home suits families or buyers seeking a spacious coastal property with substantial garden potential and the possibility of adding an annex for extended family or rental income (STPP). With no onward chain and good local amenities — shops, cafes, primary school and access to the New Forest and Lymington sailing facilities — it offers a rare plot in a very affluent, low-crime part of Milford on Sea.
4 bedroom detached house for sale in Keyhaven Road, Milford on Sea, Lymington, SO41 — £875,000 • 4 bed • 2 bath • 1729 ft²
4 bedroom detached house for sale in Lane, Milford on Sea, Lymington, Hampshire, SO41 — £1,595,000 • 4 bed • 3 bath • 2756 ft²
4 bedroom detached house for sale in Lymington Road, Milford on Sea, Lymington, Hampshire, SO41 — £950,000 • 4 bed • 2 bath • 2235 ft²
4 bedroom detached house for sale in Glebe Fields, Milford on Sea, Lymington, Hampshire, SO41 — £630,000 • 4 bed • 1 bath • 1384 ft²
4 bedroom detached house for sale in Lymington Road, Milford on Sea, Lymington, Hampshire, SO41 — £875,000 • 4 bed • 2 bath • 1510 ft²
3 bedroom detached house for sale in Studland Drive, Milford on Sea, SO41 — £599,950 • 3 bed • 1 bath • 1114 ft²














































































