Single-floor home near train station with garage and conservatory.
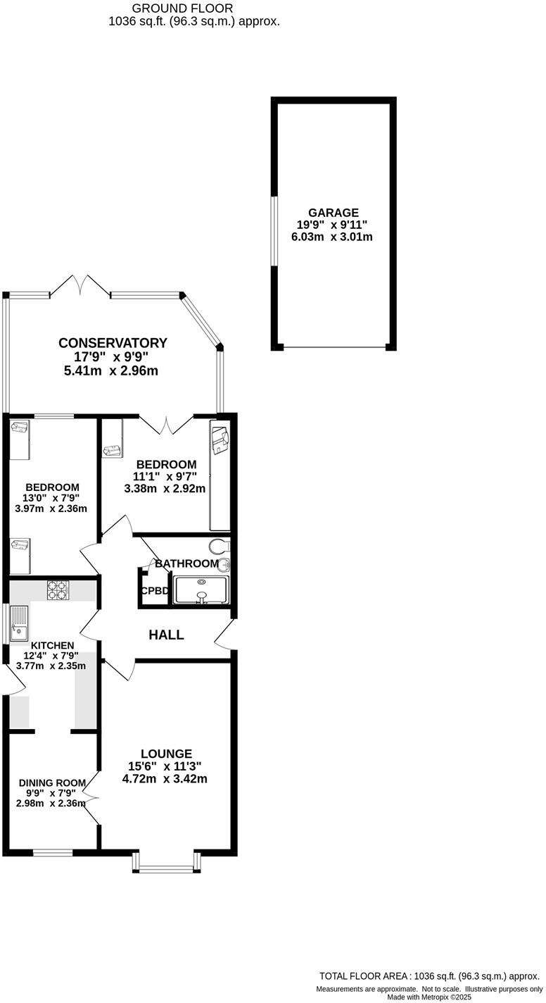
Two double bedrooms with fitted wardrobes
Single shower room only; one bathroom for whole house
Detached garage, private driveway providing off‑road parking
Conservatory offers extra light and garden access
Two reception rooms — lounge and separate dining room
Dated interior and fittings; likely requires cosmetic updating
Double glazing present but install date unknown
Average mobile and broadband speeds in the area
This two-double-bedroom detached bungalow sits at the end of a peaceful Horseshoe Avenue cul-de-sac, offering single-floor living with practical space and ease of access. The property totals about 1,036 sq ft and includes two reception rooms, a conservatory, detached garage, driveway parking and a tidy lawned garden — well suited to downsizers or a small family wanting low-maintenance living close to transport links.
Internally the layout is traditional and straightforward: an entrance hall leads to a bay-fronted lounge and adjoining dining room, a fitted kitchen, two double bedrooms (both with fitted wardrobes) and a single shower room. The conservatory opens onto the rear garden and brings extra light and flexible space. The house appears well cared for but some interior fittings and finishes are dated and will benefit from updating to modern tastes.
Practical strengths include mains gas central heating, double glazing (install date unknown), affordable council tax banding, low local crime and easy access to Dove Holes station and nearby towns. Notable limitations are a single bathroom, average mobile and broadband speeds, and an interior that may need cosmetic upgrading — useful to budget for minor modernisation. The property is offered freehold and occupies a decent plot size, making it a straightforward, low‑risk purchase for buyers seeking immediate single‑storey convenience.
2 bedroom bungalow for sale in Dovedale Crescent, Buxton, Derbyshire, SK17 — £340,000 • 2 bed • 1 bath • 1130 ft²
2 bedroom semi-detached house for sale in Hallsteads, Dove Holes, Buxton, Derbyshire, SK17 — £340,000 • 2 bed • 1 bath • 1011 ft²
2 bedroom detached bungalow for sale in Lismore Park, Buxton, SK17 — £375,000 • 2 bed • 1 bath • 840 ft²
2 bedroom semi-detached bungalow for sale in Beautiful bungalow with off road parking, currently let as Airbnb, SK23 — £300,000 • 2 bed • 1 bath • 839 ft²
3 bedroom detached bungalow for sale in Amberley Drive, Buxton, SK17 — £335,000 • 3 bed • 1 bath • 779 ft²
3 bedroom detached bungalow for sale in Horderns Lane, Chapel-En-Le-Frith, High Peak, SK23 — £450,000 • 3 bed • 3 bath • 1952 ft²


















































































































