Chain-free Grade II listed one-bedroom with communal garden and long lease, suited to investors or compact households..
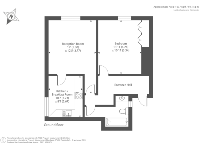
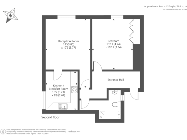
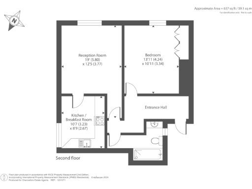
- Second-floor one-bedroom apartment with communal rear gardens
- Grade II listed building — restrictions on alterations
- Very long lease (c. 992–995 years) and chain-free sale
- Electric heating; consider running costs compared with gas
- Large overall size (c. 637 sq ft) and well presented interior
- Located in town centre with fast broadband and excellent mobile
- Area classed as very deprived with very high local crime rates
- Constrained renters neighbourhood — affects rental demand/profile
A well-presented one-bedroom apartment set on the second floor of a Grade II listed building in central Leominster. The flat offers a double bedroom, living room, fitted kitchen and family bathroom, with the shared use of neat communal gardens to the rear. The property is sold with no onward chain and benefits from a very long lease (circa 992–995 years) and low council tax.
This home is move-in ready and shows modern touches in the kitchen and living areas, plus electric heating and strong mobile and broadband connectivity — useful for renters or home workers. Proximity to shops, rail links and local amenities places it within easy reach of everyday services and the town’s weekly market.
Important considerations: the building’s Grade II listed status may restrict alterations and could complicate some works or lettings. The surrounding area is classified as very deprived with very high local crime statistics and a constrained renters profile; these factors affect resale and rental prospects and should be weighed by buyers and investors. Heating is electric, which can be costly compared with gas.
Studio flat for sale in Leominster, Herefordshire, HR6 — £70,000 • 1 bed • 1 bath
2 bedroom flat for sale in Broad Street, Leominster, HR6 — £115,000 • 2 bed • 1 bath • 777 ft²
2 bedroom flat for sale in Leominster, Herefordshire, HR6 — £130,000 • 2 bed • 1 bath • 679 ft²
1 bedroom flat for sale in The Lodge, Bryanston House, Leominster, Herefordshire, HR6 — £110,000 • 1 bed • 1 bath • 527 ft²
1 bedroom flat for sale in South Street, Leominster, Herefordshire, HR6 — £105,000 • 1 bed • 1 bath • 502 ft²
2 bedroom apartment for sale in Carl Davis House, South Street, Leominster, HR6 — £99,950 • 2 bed • 1 bath • 691 ft²


















































